CWLH9-130 Specifications

WALL MOUNT RANGE HOOD SPECIFICATIONS
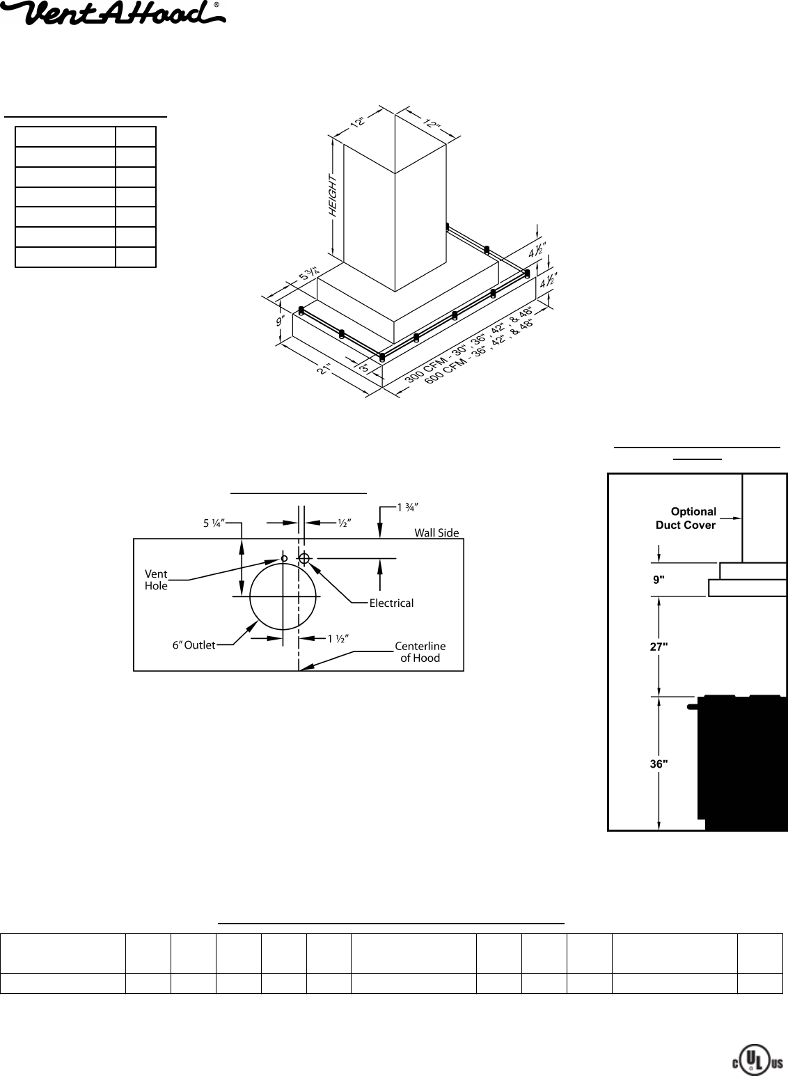
CWLH9-130
Halogen lights. This model is not available with heat lamps. Shown with optional duct cover (sold separately). Optional duct covers are available in standard
and custom sizes. Galley rail included.
Dimensional Information
Width
30
Depth
21.0
Height
9.0
CFM @ 0.0" SP
300.0
Sones
5.4
Amps
2.5
# Lights
2.0
Recommended Mounting
Height*
*Exceeding recommended mounting height
may compromise performance.
Electrical/Mechanical Specifications For Blower Unit
Model Volts Amps* Hz RPM
CFM
SP@0.0"
Equivalent CFM
CFM
SP@0.1"
CFM
SP@0.2"
CFM
SP@0.3"
Minimum Round Duct Size Sones
#
B100 Single 115.0 1.5 60.0 1550.0 300.0 450.0 273.0 245.0 225.0 6" (28 sq. in.) 5.4
+ This model is equipped with halogen lighting: (2 lights: 30" - 41", 3 lights: 42" - 53", 4 lights: 54" - 66").
$ Because the Magic Lung® blower uses centrifugal filtration rather than conventional baffle or mesh filters, the Magic Lung® blower can handle cooking equipment with higher cubic feet per minute (CFM) requirements and can deliver equivalent CFM
much more efficiently than other filtration systems. When comparing the Magic Lung® with other blower units made by other manufacturers, use the "Equivalent CFM".
# Ratings in accordance with the Standard Test Code by the Energy Systems Laboratory of the Texas Engineering Experiment Station.
SPECIFICATIONS SUBJECT TO CHANGE WITHOUT NOTICE
Connection Diagram
300 CFM B100 Single Blower (Top View)

