Technical data

VAX/VAXserver 4000-300, -400, and -500 Conversion
5.6 Removing and Replacing the BA440 Backplane
8. Remove the ISE bezels by loosening the single top screw.
9. Loosen the two screws securing the ISE units.
10. Pull the ISEs away from the backplane. If removing ISEs from the
enclosure, lay the ISEs on the antistatic mat.
Leave the front panel cables and bezels connected to their designated
drives. (Bus node plugs in the front panel must stay with their respective
ISE.)
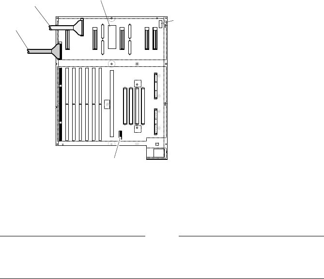
11. Disconnect the internal DSSI and KZQSA bus cables (upper left of
backplane) behind the ISEs as shown in Figure 5–5.
Figure 5–5 Bus Cable Locations
KZQSA Cable
DSSI Cable
Vterm Module
MLO-004223
SCP
Connector
H3604 Power
Connector
LJ-02318-TI0
12. Loosen the screw holding the tape drive front panel.
Note
For the TLZ-series and TF-series tape drives, leave the front panel
cables attached.
13. Loosen the two screws holding the tape drive and pull the tape drive away
from the bus.
5–10 VAX/VAXserver 4000-300, -400, and -500 Conversion










