Installation manual

www.fmiproducts.com
126336-01A6
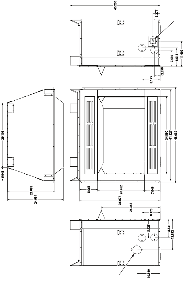
PRODUCT SPECIFICATIONS
Continued
41.127
43.039
34.890
36.074
7.049
20.962
8.063
7.410
8.513
11.492
3.277
2.550
8.175
8.525
8.331
8.175
13.892
10.349
24.934
21.081
6.043 29.101
26.366
40.250
Right Side View Left Side View
Front View
Firebox Top View
36" MODELS
Figure 2 - Product Specifications 36'' Models
Outside
Air Kit
Location
Electrical
Outlet










