- Vanguard user guide PROPANE/LP GAS LOG HEATER

10
105190
UNVENTED PROPANE/LP GAS LOG HEATER
VANGUARD
INSTALLATION
Continued
INSTALLING HEATER BASE
ASSEMBLY
WARNING: If installing in a
sunken fireplace, special care is
needed. You must raise the fire-
place floor to allow access to
heater control panel. This will in-
sure adequate air flow and guard
against sooting. Raise fireplace
floor with noncombustible mate-
rial. Make sure material is secure.
CAUTION: Do not pick up
heater base assembly by the
burner. This could damage
heater. Only handle base assem-
bly by grates.
WARNING: You must secure
this heater to fireplace floor. If
not, heater will move when you
adjust controls. Moving heater
may cause a gas leak.
IMPORTANT:
Make sure the heater burner
is level. If heater is not level, heater will not
work properly.
CAUTION: Do not remove the
metal data plates attached to the
heater base assembly. The data
plates contain important warranty
information.
INSTALLING DAMPER
CLAMP ACCESSORY FOR
VENTED OPERATION
Note:
When used as a vented heater, appli-
ance must be installed only in a solid-fuel
burning fireplace with a working flue and
constructed of noncombustible material.
If your heater is a manually-controlled model,
you may use this heater as a vented product.
There are three reasons for operating your
heater in the vented mode.
1. The fireplace does not meet the clear-
ance to combustibles requirements for
vent-free operation.
2. State or local codes do not permit vent-
free operation.
3. You prefer vented operation.
If reasons number 1 or 2 above apply to you,
you must permanently open chimney flue
damper. You must install the damper clamp
accessory (to order, see Accessories, page
24). This will insure vented operation (see
Figure 10). The damper clamp will keep
damper open. Installation instructions are
included with clamp accessory.
See chart below for minimum permanent
flue opening you must provide. Attach
damper clamp so the minimum permanent
flue opening will be maintained at all times.
Chimney Minimum Permanent
Height (ft.) Flue Opening (sq. ins.)
6' to 15' 39 sq. inches
15' to 30' 2.9 sq. inches
Area of Various Standard
Round Flues
Diameter (ins.) Area (sq. ins.)
5" 20 sq. inches
6" 29 sq. inches
7" 39 sq. inches
8" 51 sq. inches
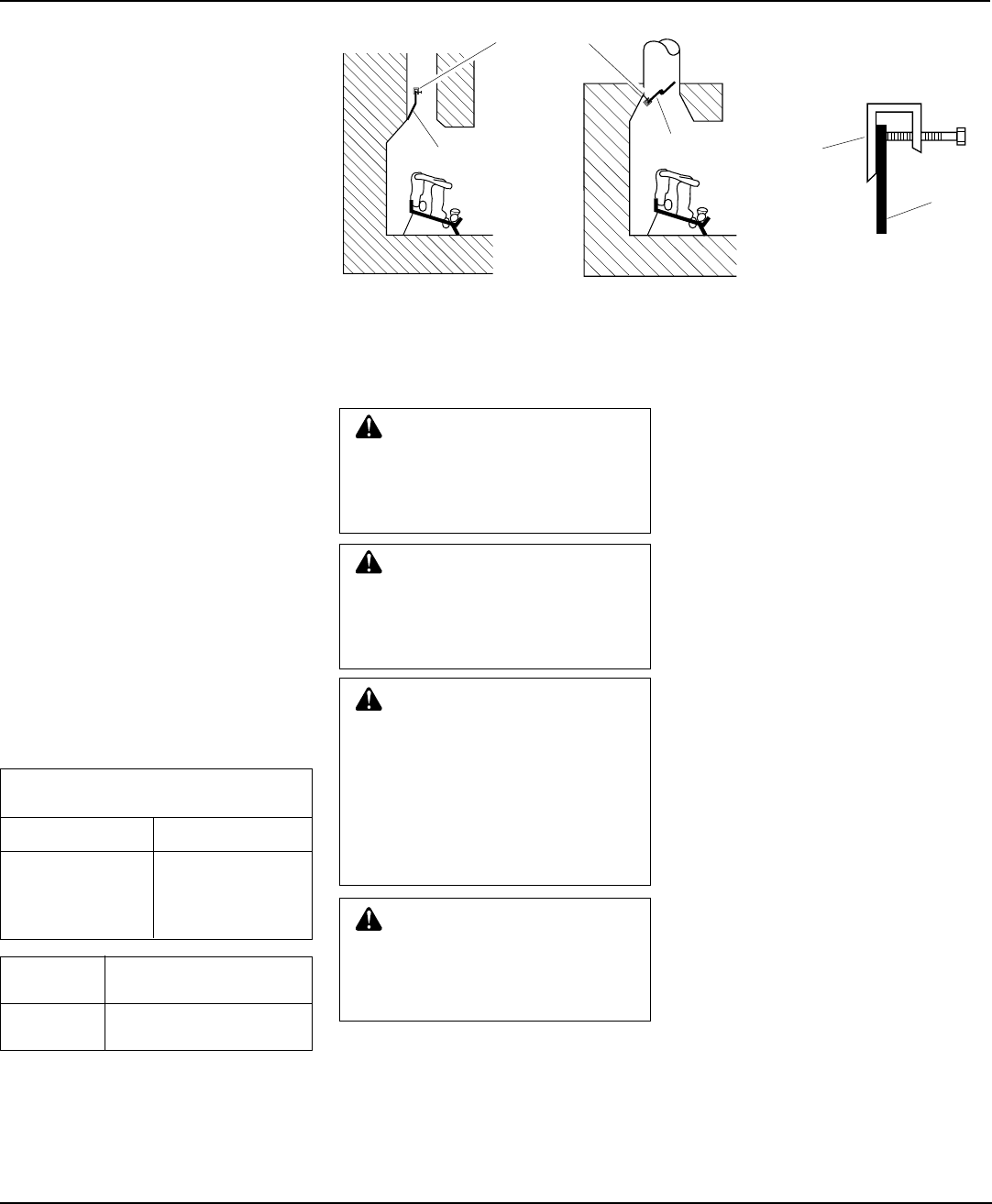
Damper
Damper Clamp
Damper
Clamp
Damper
Damper
Manufactured Fireplace
Masonry Fireplace
Figure 10 - Attaching Damper Clamp
Installation Items Needed
• hardware package (provided with heater)
• approved flexible gas hose (not provided)
(if allowed by local codes)
• sealant (resistant to propane/LP gas, not
provided)
• electric drill with 3/16" drill bit (metal
or masonry as applicable)
• flathead screwdriver
1. Apply pipe joint sealant lightly to male
threads of the fitting to be threaded into
gas control. Connect approved flexible
gas hose to gas control fitting in heater
(see Figure 11, page 11).
IMPORTANT:
Hold gas fitting with
wrench when connecting flexible gas
hose.
2. Locate two masonry screws in hard-
ware package.
3. Place heater base in fireplace.
4. Place logs in their proper position on
heater base (see Installing Logs, page 13).
5. Center heater base and logs front-to-
back and side-to-side in fireplace.
6. Carefully remove logs without moving
heater base.
7. Mark screw locations through one hole
on each side of the mounting bracket
(see Figure 12, page 11). If installing
in a brick-bottom fireplace, mark screw
locations in mortar joint of bricks.
8. Remove heater base from fireplace. If
installing optional control accessories,
do so at this time. Follow all directions
provided with accessory.










