Owner's Manual
Table Of Contents

www.desatech.com
105604-01J 5
12
1
/
2
"
2
3
/
4
"
1
1
/
2
"
9
3
/
4
"
4
5
/
8
"
2
1
/
2
"
6"
32
3
/
16
"
33
11
/
16
"
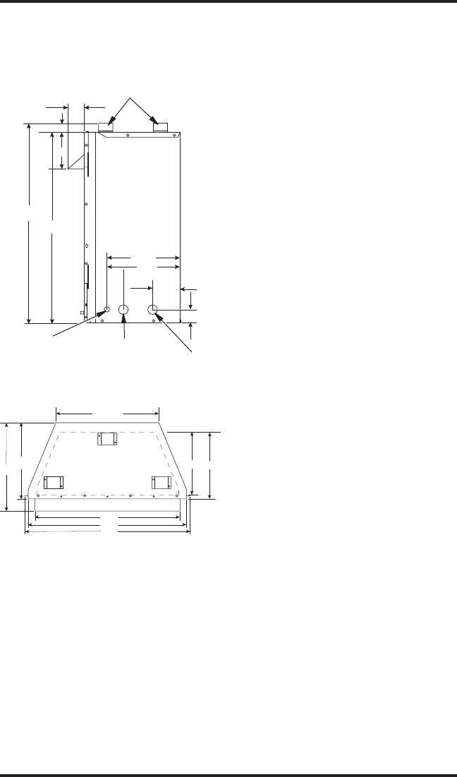
Figure 2 - Firebox Side View
Gas Line
Access
Standoffs (Models FB32NCA
and NLFB32NC only)
Electrical
Access Hole
Electrical
Access Hole
with Bushing
22
1
/
2
"
16
11
/
16
"
13
1
/
4
"
*
14
1
/
4
"
*
31
5
/
8
"
34
3
/
8
"
35
5
/
8
"
19
1
/
4
"
Figure 3 - Firebox Top View
*Note: 14
1
/
4
" is total firebox cavity depth
including brick liner. 13
1
/
4
" is depth of flat
floor including brick liner.
PRODUCT
SPECIFICATIONS
Continued
PRODUCT FEATURES
OPERATION
This firebox is designed for use with approved
ANSI Z21.1.2 decorative type unvented room
heaters. (Physical size limitations apply. Refer to
minimum firebox requirements supplied with log
heater.) It requires no outside venting or chimney
making installation easy and inexpensive. When
used without the blower (models FB32CA and
NLFB32C only), the firebox requires no electricity
making it ideal for emergency backup heat.
BLOWER ACCESSORY
The FB32CA and NLFB32C firebox will accept
the GA3750A accessory. The variable blower al
-
lows you to select the fan speed you desire. The
blower circulates heated air from the firebox into
the room. Use of blower is optional.
LOCATING FIREBOX
Plan where you will install the firebox. This will
save time and money later when you install the fire-
box. Before installation, consider the following:
1. Where the firebox will be located. Allow for
wall and ceiling clearances (see
Installation
Clearances, page 9).
2. Everything needed to complete installation.
3. These models CANNOT be installed in a
bedroom or bathroom.
4. Proper air for combustion and ventilation (see
page 6).










