Owner's Manual
Table Of Contents

www.desatech.com
105604-01J4
5. Vent-free gas log heaters installed in these
fireboxes require fresh air ventilation to run
properly. See Air for Combustion and Ventila-
tion, page 6.
6. Do not run firebox
• where flammable liquids or vapors are used
or stored
• under dusty conditions
7. Do not use this firebox to cook food or burn
paper or other objects.
8. Turn firebox off and let cool before servicing.
Only a qualified service person should service
and repair firebox.
9.
Operating vent-free log sets in a firebox
above elevations of 4,500 feet could cause
pilot outage.
10. Do not use the firebox if it has been under
water due to the shock hazard that could
result with the blower accessary (if installed)
in place.
11.
Provide adequate clearances around air
openings.
LOCAL CODES
Install and use fireplace with care. Follow all local
codes. In the absence of local codes, use the latest edi
-
tion of The National Fuel Gas Code ANSI Z223.1/
NFPA 54*. Firebox must be electrically grounded
in accordance with the National Electrical Code,
ANSI/NFPA70
(latest edition).
*Available from:
American National Standards Institute, Inc.
1430 Broadway
New York, NY 10018
National Fire Protection Association, Inc.
Batterymarch Park
Quincy, MA 02269
UNPACKING
1. With utility knife, cut the carton all the way
around above the staples on the bottom tray.
Lift the carton off the firebox. Remove pack
-
ing. Note: The hood is located in the packing
on the right hand side of the heater front. Lift
the heater off the bottom tray.
SAFETY INFORMATION
Continued
2. Check carton contents for the following:
• Screen assembly (2)
• Screen support rod (2)
• Hood
• Hardware and parts bag containing the
following:
• Ownerʼs Operation and Installation
Manual
• 2 - Black #10 x 3/8” Phillips screws
• 3 - Zinc #10 x 1/2” shouldered hex
screws
• 2 - Black #10 x 5/8” shouldered hex
screws
If any items are missing, inform dealer where
you bought the firebox.
3. Check all items for any shipping damage. If
damaged, promptly inform dealer where you
bought firebox.
PRODUCT
SPECIFICATIONS
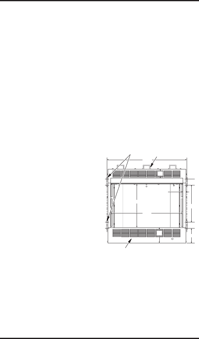
Figure 1 - Firebox Front View
35
1
/
16
"
31
3
/
4
"
16
1
/
4
"
1
1
/
4
"
2
3
/
4
"
2
3
/
4
"
6
3
/
8
"
19
3
/
8
"
3
7
/
8
"
6
3
/
4
"
Built-in Nailing
Flanges
Standoffs (Models
FB32NCA and
NLFB32NC only)
Louvers (Models FB32CA
and NLFB32C only)










