User guide

PAGE 4
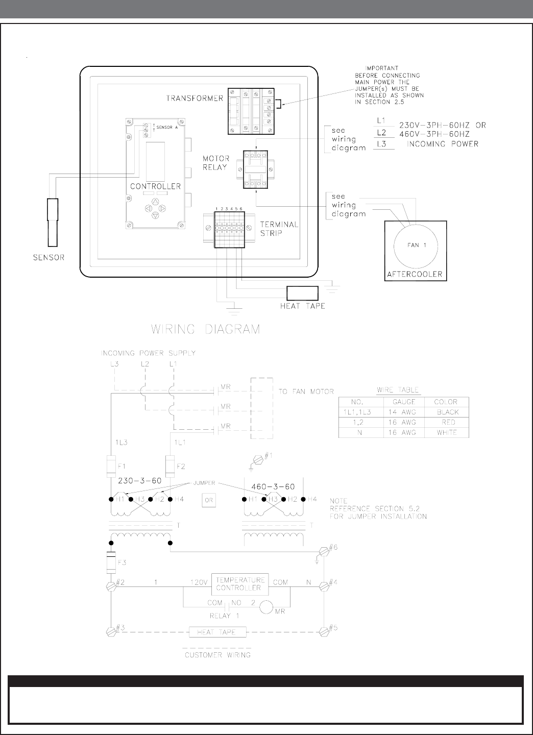
IMPORTANT
THE FAN MOTOR MUST ROTATE IN THE CORRECT DIRECTION. REFERENCE THE AFTERCOOLER
OPERATOR'S MANUAL FOR PROPER ROATION DIRECTION. IF IT DOES NOT, THE ROTATION CAN BE
CORRECTED BY SWITCHING TWO OF THE POWER LEADS TO THE MOTOR.
SECTION 2 INSTALLATION
FIGURE 2-F CONTROL BOX COMPONENT LAYOUT and WIRING DIAGRAM










