User guide

WIRING APPLICATIONS (EXAMPLES) T775A/B/M SERIES 2000 CONTROLLER
9 62-0254–03
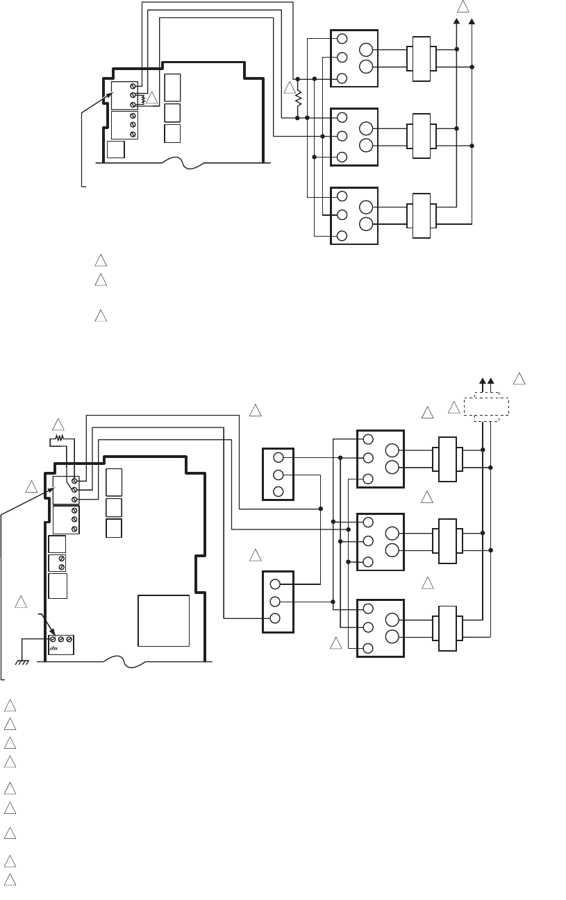
Fig. 19. Wiring for three Series 90 Modutrol Motors.
Fig. 20. Wiring for unison control of M9184 or M9185 Modutrol IV Motor using one minimum position
potentiometer for all motors.
POWER SUPPLY. PROVIDE DISCONNECT MEANS AND OVERLOAD PROTECTION AS REQUIRED.
USE A 1300 OHM RESISTOR FOR TWO MOTORS, 910 OHM RESISTOR FOR THREE MOTORS.
THE 407EAU RESISTOR KIT, WHICH IS SHIPPED WITH THE M9184 AND M9185 MOTORS,
INCLUDES BOTH RESISTORS.
INSERT 340 OHM RESISTOR (INCLUDED) ACROSS TERMINALS R AND W.
1
2
1
2
M9184 OR M9185
MODUTROL MOTOR
W
R
B
TR
TR
W
R
B
TR
TR
W
R
B
TR
TR
M9184 OR M9185
MODUTROL MOTOR
M9184 OR M9185
MODUTROL MOTOR
L1
(HOT)
L2
M24486
MODULATING OUTPUT
TERMINAL (MOD 1)
B
R
W
+
–
B
R
W
+
–
3
3
POWER SUPPLY. PROVIDE DISCONNECT MEANS AND OVERLOAD PROTECTION AS REQUIRED.
UP TO SIX SIMILAR MOTORS CAN BE CONNECTED IN UNISON.
USE RESISTOR BETWEEN R AND B ON THE MOD 1 TERMINAL: 1300 OHMS FOR TWO MOTORS; 910 OHMS FOR THREE MOTORS (4074EAU KIT).
IF COMMON TRANSFORMER IS USED, ALL MOTORS MUST BE IN PHASE. CONNECT THE SAME TRANSFORMER LEAD TO T1 ON EACH MOTOR,
CONNECT THE OTHER TRANSFORMER LEAD TO T2 ON EACH MOTOR.
USE TEMPERATURE CONTROLLER SUCH AS H205 OR H705, OR T675A FOR CHANGEOVER CONTROL.
AUTHORITY OF MINIMUM POSITION POTENTIOMETER, IF USED, INCREASES WITH THE NUMBER OF MOTORS IN PARALLEL. WITH ONE MOTOR,
50% STROKE; WITH TWO MOTORS, 100% STROKE; WITH THREE MOTORS, 100% STROKE WITH 1/3 OF FULL POTENTIOMETER ROTATION.
REVERSING THE B AND W TERMINALS ON ONE OR MORE MOTORS WILL NOT AFFECT CONTROL PERFORMANCE ON THE OTHER MOTORS.
THE SYSTEM CAN BE CONFIGURED TO HAVE SOME MOTORS BE REVERSE ACTING AND OTHER MOTORS BE DIRECT ACTING.
USE SEPARATE TRANSFORMER FOR T775 WHEN POWERING FROM 24 VAC.
THE SYSTEM IS SHOWN CONNECTED FOR COOLING. FOR HEATING, REVERSE THE W AND B LEADS OF THE MODULATING OUTPUT ON THE
T775 CONTROLLER.
1
1
2
M9184 OR M9185
MODUTROL MOTOR
W
R
B
TR
TR
W
R
B
TR
TR
W
R
B
TR
TR
M9184 OR M9185
MODUTROL MOTOR
M9184 OR M9185
MODUTROL MOTOR
L1 (HOT) L2
W
R
B
MINIMUM
POSITION
POTENTIOMETER
(Q209/S963)
1
2
3
W
B
R
CHANGEOVER
CONTROLLER
6
4
2
2
2
5
7
3
9
6
4
5
7
3
8
9
M24487
MODULATING OUTPUT TERMINAL (MOD 1)
B
R
W
+
–
+
–
B
R
W
+
–
POWER
24 VAC
8
C
+










