User guide

WIRING APPLICATIONS (EXAMPLES) T775A/B/M SERIES 2000 CONTROLLER
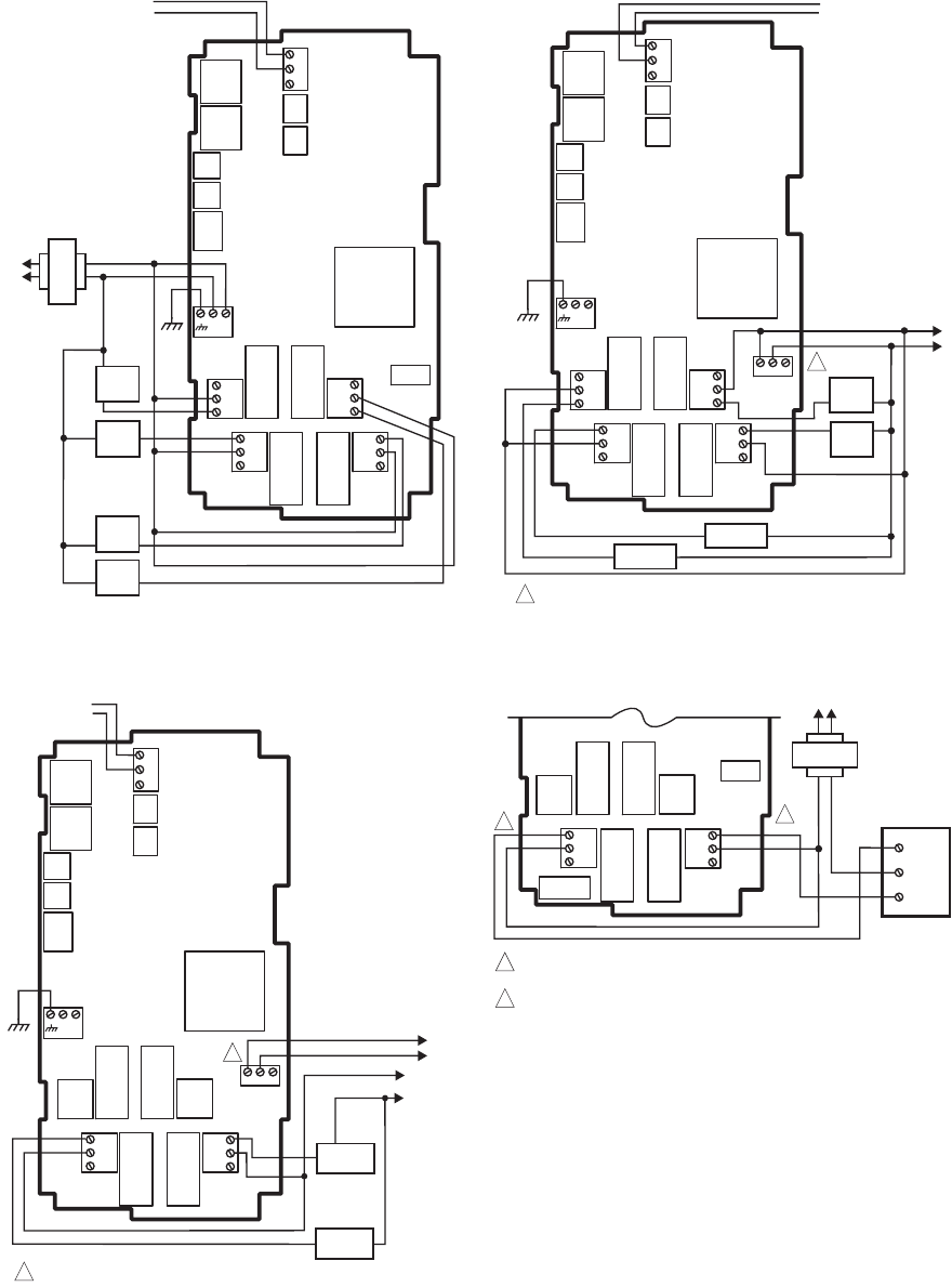
7 62-0254–03
Fig. 9. Wiring for four-stage control – 24 Vac input
and 24 Vac load.
Fig. 10. Wiring for two-stage control with 120 or 240
Vac (120 Vac input and 120 Vac load shown).
Fig. 11. Wiring for four-stage control with 120 or 240
Vac (120 Vac input and 120 Vac load shown).
Fig. 12. Wiring for floating output (Relay 1 and Relay 2
pair shown).
L1
(HOT)
L2
24 VAC
M24476
A
SENSOR A
C
NO
NC
C
NO
NC
C
NC
NO
C
NC
NO
T
T
COM
LOAD
4
NO
LOAD
3
LOAD
2
LOAD
1
C
+
COM
NO
COM
NO
COM
NO
SENSOR A
C
NO
NC
C
NO
NC
T
T
COM
LOAD 2
LOAD 1
NO
COM
NO
COM
120V
M24477A
1
1
FOR 240 VAC LOAD, CONNECT TO 240 TERMINAL.
C
+
120
COM
240
POWER SUPPLY
L1 (HOT )
L2
SENSOR A
1
FOR 240 VAC LOAD, CONNECT TO 240 TERMINAL.
C
NO
NC
C
NO
NC
C
NC
NO
C
NC
NO
T
T
COM
120V
1
M24478A
LOAD 1
LOAD
3
LOAD
2
COM
NO
LOAD 4
C
+
120
COM
240
COM
NO
C
NO
NC
C
NO
NC
BARCODE
M24479
CLOSE RELAY TO DRIVE DEVICE OPEN. RELAY 1 SHOWN.
(RELAYS 1 AND 3 ARE USED FOR OPEN).
CLOSE RELAY TO DRIVE DEVICE CLOSED. RELAY 2 SHOWN.
(RELAYS 2 AND 4 ARE USED FOR CLOSE).
THE RELAYS MUST BE WIRED IN PAIRS WITH RELAYS 1 AND 2
BEING THE FIRST PAIR, AND RELAYS 3 AND 4 BEING THE SECOND PAIR.
1
2
1
2
120/240 VAC LINE
OPEN
DEVICE
COM
CLOSE
NO
COM
NO
COM










