Owner's manual

PAGE 1
DO NOT OPERATE THIS SYSTEM ABOVE MAXIMUM WORKING
PRESSURE (MWP) AND/OR MAXIMUM OPERATING TEMPERA-
TURE (
O
F) SHOWN ON THE VESSEL ASME DATA PLATE.
THIS ASME CODE VESSEL MUST BE PROTECTED BY A
PRESSURE RELIEF VALVE. Refer to OSHA 1910.169 Par.
b, Sub. Par (3) and ASME Boiler and Pressure Vessel Code,
Section VIII, Division 1, UG-125 through UG-136. Also comply
with all applicable state and local codes.
DO NOT ATTEMPT TO REMOVE OR REPAIR ANY PART OF THE
SYSTEM UNTIL IT IS COMPLETELY DEPRESSURIZED. SERI-
OUS PERSONAL INJURY MAY RESULT IF THIS SAFETY RULE
IS NOT FOLLOWED.
DO NOT WELD, GRIND, OR SAND VESSEL, THIS WILL MAKE
IT UNSAFE TO OPERATE. (Note: Any alteration to the vessel
will void the ASME Code Certiî‚¿cation and the warranty.)
INSPECT VESSEL, INSIDE AND OUT, REGULARLY FOR
BULGES, CORROSION, DENTS, GOUGES, LEAKS OR SIGNS
OF FIRE. IF DAMAGED, REMOVE FROM SERVICE IMMEDI-
ATELY AND NOTIFY YOUR CERTIFYING AUTHORITY.
DO NOT TRY TO TIGHTEN A LEAKING HATCH COVER. IM-
MEDIATELY SHUT OFF THE AIR SUPPLY AND DEPRESSUR-
IZE THE SYSTEM.
DO NOT ATTEMPT TO REMOVE THE HATCH COVER UNTIL
THE SYSTEM IS COMPLETELY DEPRESSURIZED. WHEN
THE VESSEL PRESSURE IS REDUCED TO ZERO, THE HATCH
COVER CAN BE REMOVED BY HAND.
INSTALL A NEW GASKET EVERY TIME THE HATCH COVER
IS REMOVED, OR AT LEAST ONCE PER YEAR. INSPECT THE
COVER AND SEALING SURFACE FOR DAMAGE SUCH AS
CORROSION, CRACKS, OR DISTORTION. IF THERE IS ANY
DAMAGE, REPLACE COVER. REPLACE THE HATCH COVER
EVERY FIVE YEARS REGARDLESS OF CONDITION. USE VAN
AIR AUTHORIZED PARTS ONLY.
DO NOT USE POWER TOOLS OR CHEATER BARS TO
TIGHTEN THE NUT ON THE HATCH COVER. TOO MUCH
FORCE CAN DISTORT THE COVER AND/OR THE GASKET. IF
DAMAGED BY OVERTIGHTENING, THE COVER CAN BLOW
OUT AND CAUSE SERIOUS INJURY. (Note: Tighten the nut
until it is snug. When the vessel is pressurized, the pressure
on the cover will complete the seal.)
THE USE OF CHEMICALS OTHER THAN VAN AIR DESICCANT
WILL VOID THE WARRANTY ON THE BLAST PAK.
October 2010
P/N 32-0294
Rev A
OPERATION AND MAINTENANCE INSTRUCTIONS
FOR
BLAST PAK
PACKAGED COMPRESSED AIR TREATMENT SYSTEM
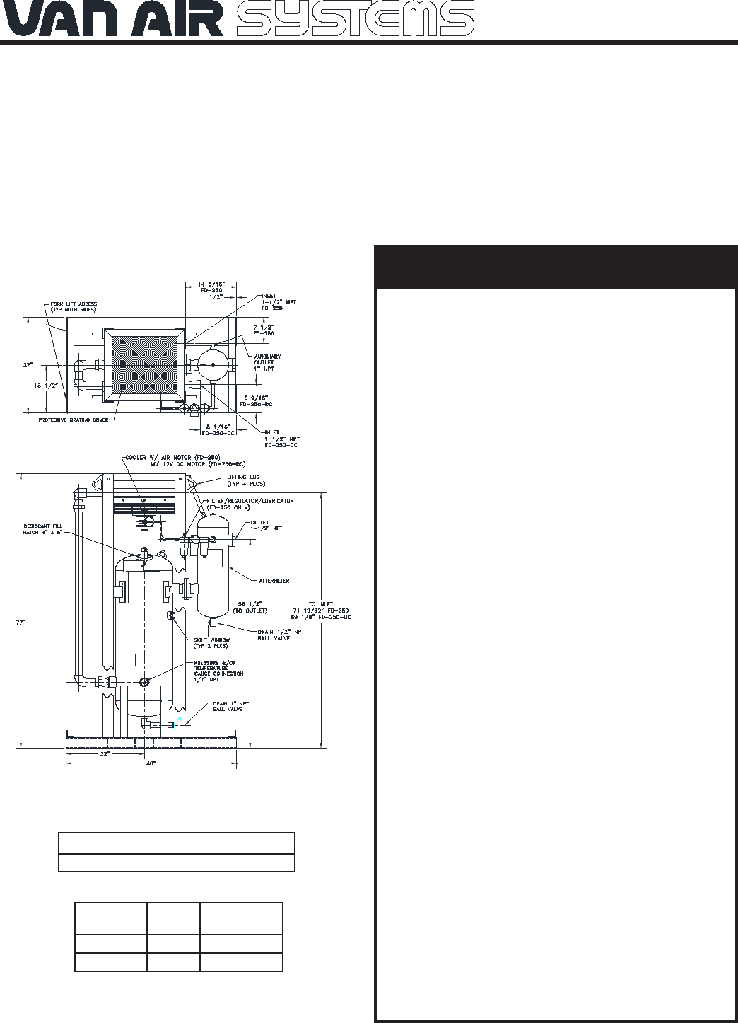
MODELS: FD-250 & FD-250-DC
WARNING
REGULATOR SETTING FOR AIR MOTOR
22 PSIG TO GET 3450 RPM
MODEL
FD-250
FD-250-DC
WEIGHT
660 lbs
675 lbs
DRY-O-LITE
DESICCANT *
250 lbs
250lbs
* - ORIGINAL FILL OF DESICCANT SUPPLIED - CUSTOMER
TO INSTALL