Full Product Manual

5
TP12KFX
Feb 2017-B
INSTALLATION INSTRUCTIONS
STEP 1: (Selecting Site) Before installing your new lift, check the following:
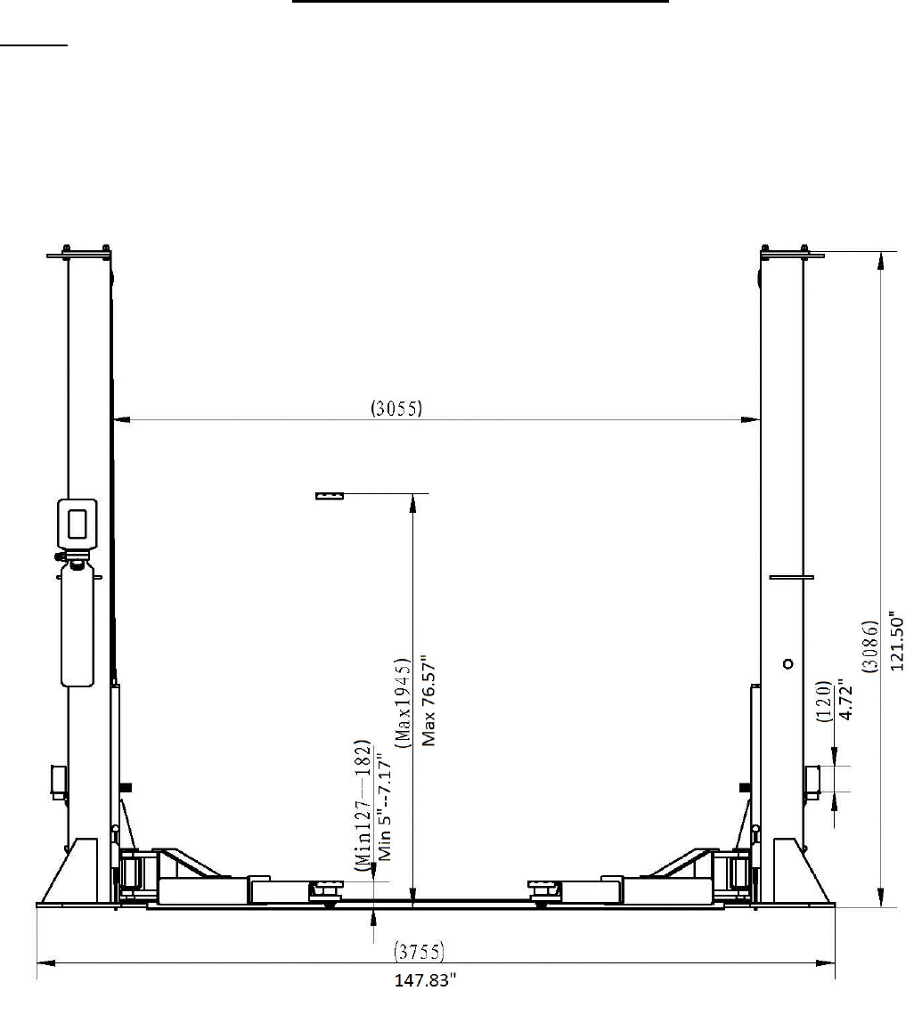
1. LIFT LOCATION: Always use architects plans when available. Check layout dimension against floor
plan requirements making sure that adequate space is available (Fig. 2 & Fig. 3).
Fig. 2
TP12KFX
120.28”










