Installation Guide
Manuals
Brands
Unbranded Manuals
Doors & Windows
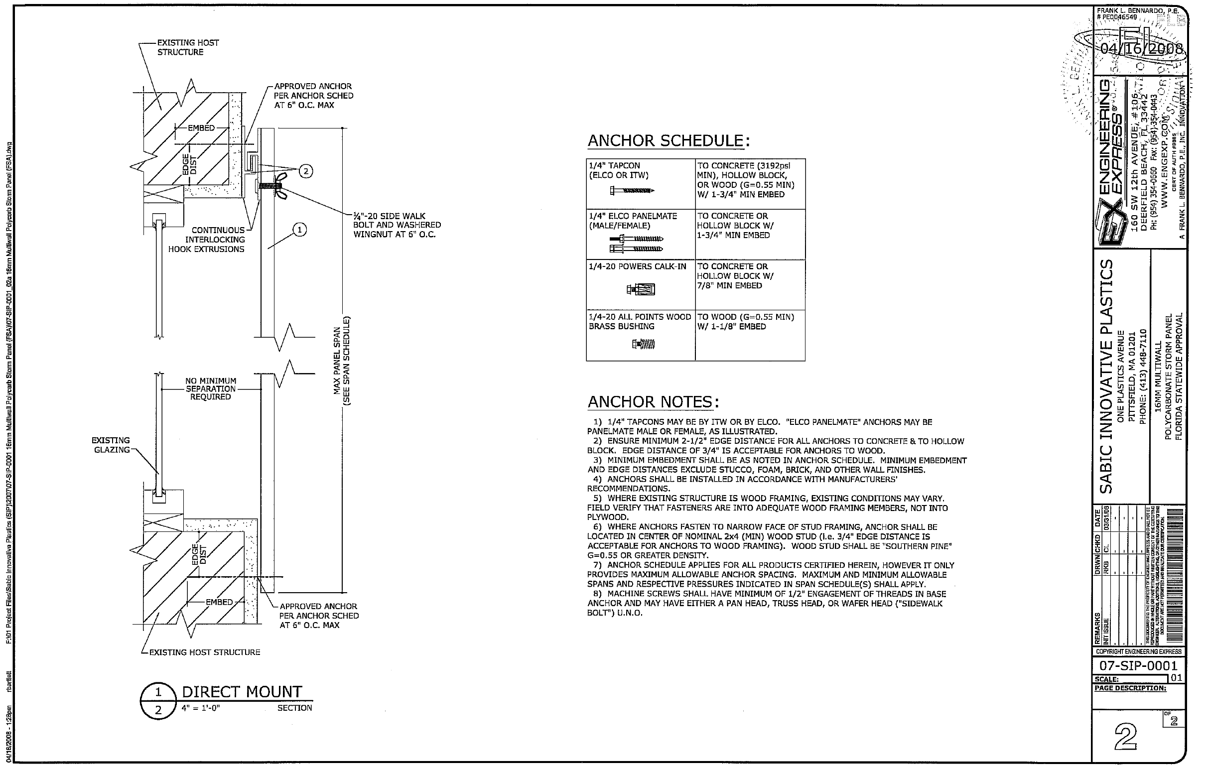
48 in. x 96 in. Multiwall Hurricane Panel
1
2
1
2