Specification Sheet

Please visit u-line.com to view this model’s User Guide & Service Manual. All Specications are subject to change without notice.
8900 North 55th Street • Milwaukee, Wisconsin 53223 USA • +1.414.354.0300 • sales@u-line.com • u-line.com
Installation Notes
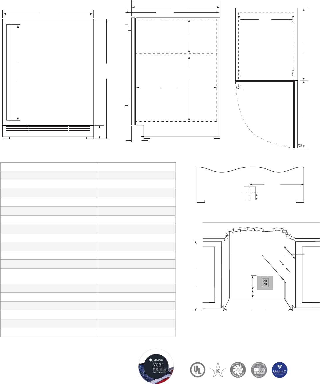
Cabinet Cut-Out
Back
Front Side Top
Panel Thickness
Panel Type
Solid Panel
Panel Width
HWD524 • 24” Dual-Zone Wine Refrigerator • 5 Class
• No additional clearance is needed for ventilation
•
4"
(102 mm)
7"
(178 mm)
24"
(610 mm)
23 7/8"
(607 mm)
33 7⁄8"
(860 mm)
to
34 7⁄8"
(886 mm)
Preferred location
for electrical outlet
is in adjacent
cabinet.
5/8"
(16 mm)
1 ⁄”
(35 mm)
6 ft (183 cm)
Power Cord
11 ¾”
(222 mm)
23
⁄”
(600 mm)
3 ½”
(89 mm)
33 ⁄”
to
34 ⁄”
(855 mm
to
881 mm)
28”
(711 mm)
8 /”
(210 mm)
14 ⁄”
(368 mm)
22 ⁄”
(583 mm)
24 ⁄”
(630 mm)
3 ⁄“ (89 mm)
17 /”
(445 mm)
1 ⁄”
(48 mm)
18 ⁄”
(481 mm)
26 ⁄”
(664 mm)
21 ⁄”
(535 mm)
*
*
D
e
s
i
g
n
e
d
,
e
n
g
i
n
e
e
r
e
d
,
a
n
d
a
s
s
e
m
b
l
e
d
i
n
M
i
l
w
a
u
k
e
e
,
W
I
,
U
S
A
t
o
b
e
r
e
m
o
v
e
d
b
y
e
n
d
c
o
n
s
u
m
e
r
o
n
l
y
3
*
v
i
s
i
t
u
-
l
i
n
e
.
c
o
m
f
o
r
d
e
t
a
i
l
s
•
+ Additional 1 Year (parts & labor) warranty at
no cost with product registration
See complete warranty for details
Specications
Warranty
with


