Specification Sheet

• 1 Year (parts & labor) / 5 year sealed system (parts)
+ Additional 1 Year (parts & labor) warranty at
no cost with product registration
See complete warranty for details
HRF124 • 24” Refrigerator / Freezer • 1 Class
D
e
s
i
g
n
e
d
,
e
n
g
i
n
e
e
r
e
d
,
a
n
d
a
s
s
e
m
b
l
e
d
i
n
M
i
l
w
a
u
k
e
e
,
W
I
,
U
S
A
t
o
b
e
r
e
m
o
v
e
d
b
y
e
n
d
c
o
n
s
u
m
e
r
o
n
l
y
2
*
v
i
s
i
t
u
-
l
i
n
e
.
c
o
m
f
o
r
d
e
t
a
i
l
s
1 year + 1 with registration
*
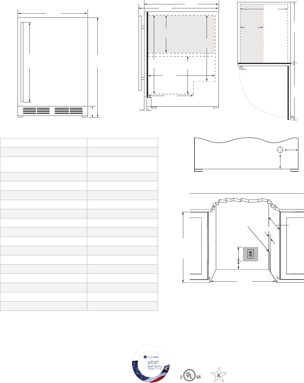
4"
(102 mm)
7"
(178 mm)
24"
(610 mm)
24 1⁄4"
(616 mm)
34 1⁄8"
(867 mm)
to
35 1⁄8"
(892 mm)
Preferred location
for electrical outlet
is in adjacent
cabinet.
5/8"
(16 mm)
Model HRF124
Amps: Running 2.4
Capacity: Volume (cu ft)
Ref: 4.2
Freezer: 1.5
Capacity: Bottle 61 (12oz)
Capacity: Can 1144 (12oz)
Defrost Type Frost Free
Dimensions: Product Depth 22
Dimensions: Product Height
Dimensions: Product Width
Energy Consumption: Avg. Per Year 495 kWh
Panel Height
Panel Thickness
Panel Type Solid Panel
Panel Width
Product Weight: Max 113 lb
Refrigerant Type R600a
Yes
Temperature Range 34°F - 45°F
23 ⁄”
(608 mm)
3 ⁄”
(91 mm)
34 ⁄” to 35 ⁄”
(867 mm
to
892 mm)
28”
(711 mm)
FREEZER
13 ⁄”
(333 mm)
18 ⁄”
(467 mm)
22 ⁄”
(562 mm)
10
½
”
(267 mm)
14 ⁄”
(359 mm)
26 ¾”
(680 mm)
22 ½”
(572 mm)
24 ⁄”
(613 mm)
1
”
(25 mm)
FREEZER
1 ⁄”
(48mm)
20 ⁄”
(529 mm)
8 ⁄”
(213 mm)
24 ½”
(622mm)
20 ⁄”
(530 mm)
Front Side Top
Cabinet Cut-Out
Back
Power Cord
6 ft (183 cm)
6 ⁄”
(162 mm)
3 ⁄”
(98 mm)
• No additional clearance is needed for ventilation
•
Installation Notes
Warranty
Specications


