Product Manual

9
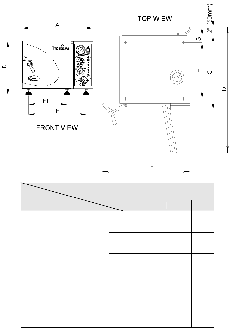
2.10 Dimensions, Models 2340, 2540
2340
M, MK
2540
M, MK
Model
Dimensions
in mm in mm
A 20.0 510 20.0 510
B 14.4 365 14.4 365
Overall Dimensions
C 21.5 545 21.5 545
D 35.8 910 35.8 910
Maximum Dimensions (door open)
E 25.8 655 25.8 655
F1 11.8 299 11.8 299
F 16.6 422 16.6 422
G 2.0 50 2.0 50
Distance
Between Supporting
Legs
F1-front legs
F -rear legs
H 15.8 400 15.8 400
Chamber Diameter 9.1 230 10 254
Chamber Depth 18.5 470 18.7 475










