Installation Instructions

!!Model:!BPT14-24AL-DSBN110/BPT14-24AL-DSORB110,!Menards!SKU:!611-3053/611-3054!!!!!!!!!!!!!!!!!!!!!!!!!!!!!!!!!!!!!!!!!!!!!!!!!!!!!!!!!!!!!!!!!!!!!!!!!!!!!!!!!!!!!!!!!Page!4!!!!!!!!!!!!!!!!!!!!!!!!!!!!!!!!!!!!!!!!!!!!!!!!!!!!!!!!!!!!!!!!!!!!!!!!!!!!!!!!!!!!!!!!!!!!!!!!!!!!!!!!!!!!!!!!!!!!!!!!!!!!!!!!!!!!!!!!!!!!!!!!!!!!!!!!!!!!!!!!!!!!!!!!!!!!!!!!!!!!!!!!!!!!!!!!!!!!!!
! !
For!Customer!Support!please!email!:BXXI8MY:M83M7RDE87M3DG:IGBMDI4:WEIN,!or!ca ll !@ZZ Z H[> 2.Z?/Z.!Please!provide!th e!b a th !fan !m o d el!n u m b er!fo u n d!
on!the!front!of!this!manual!when!contacting!Customer!Support.!
!
SPECIFICATIONS&
!I57G(1IW(
0D8(TP!(
O(
SJ(
#BEM(#D3N7M78(
1ID:7(@&I47:H(
BPT14-24AL-DSBN110!
!!BPT14-24AL-DSORB110!
110!CFM!
120!
60!
4!in.!(10!cm)!
1.5!
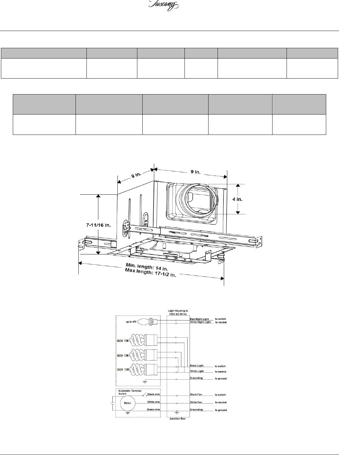
DIMENSIONS&
T7DGD4R(
"X74D4R(a(#(
T7DGD4R(
"X74D4R(a(`(b(%(
SIB:D4R(
#DN74:DI4(a(`(b(%(
SIB:D4R(
#DN74:DI4(.(#(
Grille!
Dimension!!
8!in.!
(20.3!cm)!
9!¼!in.!x!9!¼!in.!
(23.5!cm!x!23.5!cm)!
9!in.!x!9!in.!
(23!cm!x!23!cm)!
7!
11
/
16
!in.!
(19.5!cm)!
15
!5
/
16
!in!
(39!cm)!
!
!
!
&
WIRING&DIAGRAM&& &
!
!
!
&










