Residential Single and Double Wall Oven Service Manual

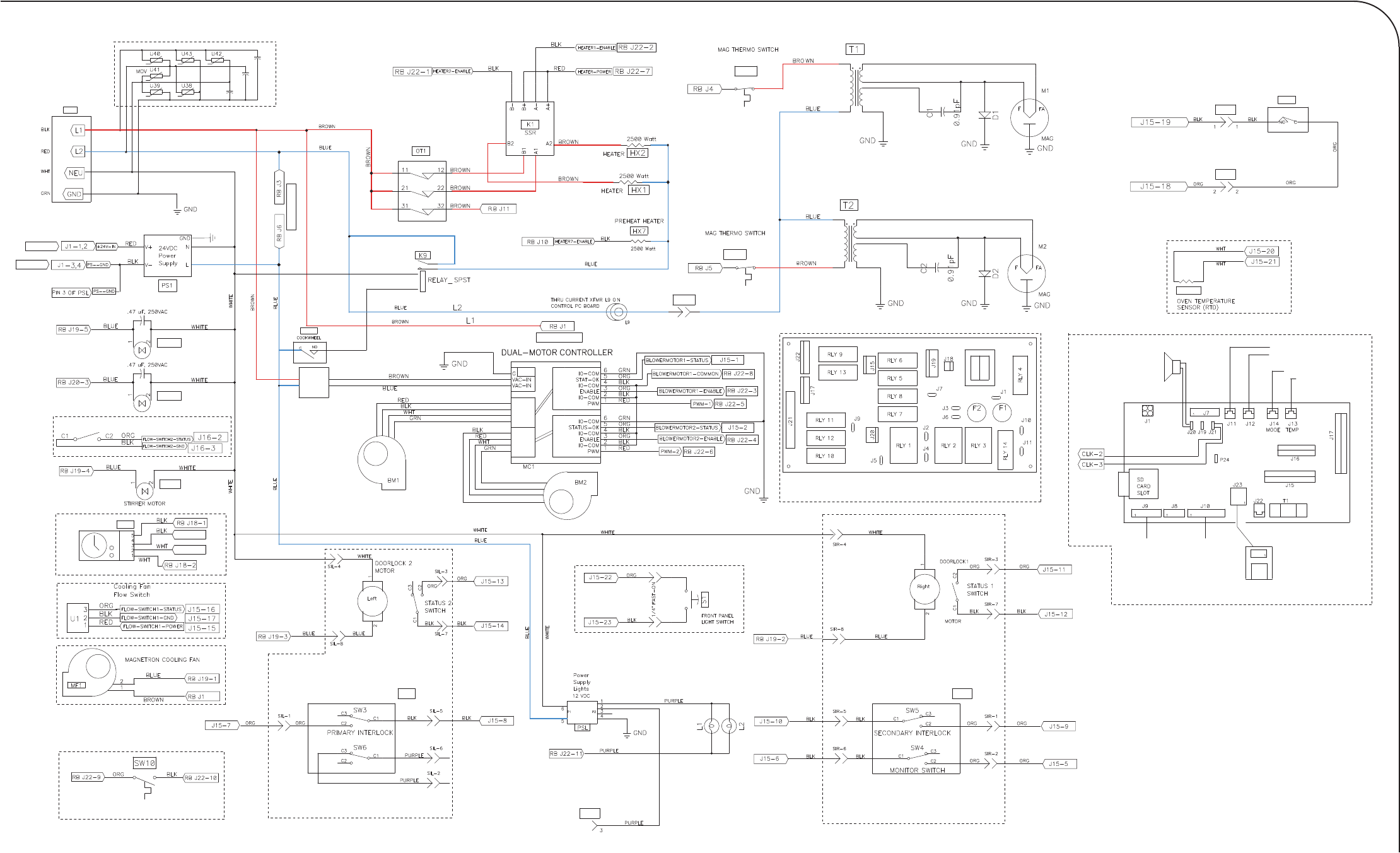
OVEN SCHEMATICS
7.5
1 uF
1 uF
BA
280° F
B
A
UTB
1 uF
CW
280° F
12
C
SIL
P30
12
CT1
SW7
SW1
SAFETY INTERLOCK
SIR
2 6
4
5
1 3
2 6
4
5
1 3
RIGHT SIDE DOOR SWITCH/LOCK ASSEMBLY
LEFT SIDE DOOR SWITCH/LOCK ASSEMBLY
SAFETY INTERLOCK
LOWER BLOWER
(Ref P/N RM34-0100)
(Ref P/N RM34-0102)
LINE
LOAD
LINE
FILTER
LF1
VAC
J4
J5
J2
J1
UPPER BLOWER
1
COM
3
4
NO
2
P30
OVEN HI-LIMIT
N.C.
L250-35F
OT 2
P30
PRTD4
STR
FAN1
CLK
CLOCK ASSEMBLY
01- MANUAL RESET
FAN2
(Single Wall Oven)
SPEAKER
TO CLOCK
ASSEMBLY
To Lower
Oven Display
USB
RECEPTACLE
To Upper Oven CookWheel
To Lower Oven Mode Knob
To Upper
Oven Display
I/O CONTROL BOARD
RB J15-1,2
RB J15-3,4
J21-1
J21-2
RB F2 -15A
“B”
“A”
RB F1 - 20AMP
N.C.
N.C.
LEFT
RIGHT
RELAY BOARD - REV D
270°F
N.O. COOLING FAN THERMOSTAT
140°F OPERATION
Switches depicted as “door open”
Switches depicted as “door open”
UPPER
LOWER
20
AMP
15
AMP
1
13
1
9
1
2
TSO Oven
EXHAUST
LOWER EXHAUST FAN SWITCH










