
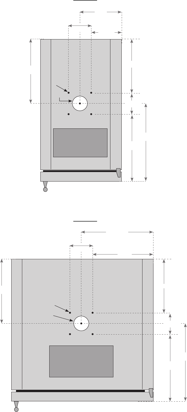
30
TRUE RESIDENTIAL
®
Drip
tray
11
31/32
"
10
5/8
"
9
3/8
"
10
23/32
"
12
13/32
"
13
3/4
"
2
3/8
"O.D.
5/32
"
2
11/16
"
2
11/16
"
Drip
tray
7
7/16
"
6
3/32
"
8
15/16
"
10
9/32
"
12
9/32
"
13
5/8
"
2
3/8
"O.D.
5/32
"
2
11/16
"
2
11/16
"
15 INCH
24 INCH