installation guide

22
TRUE RESIDENTIAL
®
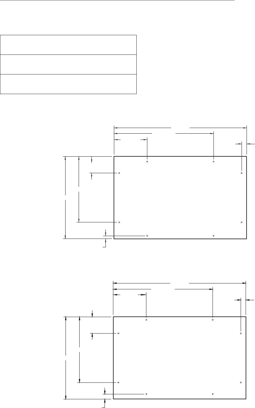
CUSTOM PANEL INSTALLATION - REFRIGERATOR DRAWER
DRAWER 24 INCH
DRAWER PANEL WIDTH 23
5/8
"
DRAWER PANEL HEIGHT 14
11/16
"
DRAWER PANEL DEPTH 3/4" max
2 31/32"
11 23/32"
14 11/16"
17/32"
5 29/32"
17 23/32"
23 5/8"
29/32"
2 31/32"
11 23/32"
14 11/16"
5 29/32"
17 23/32"
23 5/8"
29/32"
29/32"










