installation guide

18
TRUE RESIDENTIAL
®
14
7
/8"
34
1
/4"
16
1
/4"
37
7
/8"
34
1
/4"
23
7
/8"
3
3
/4"
4
1
/8"
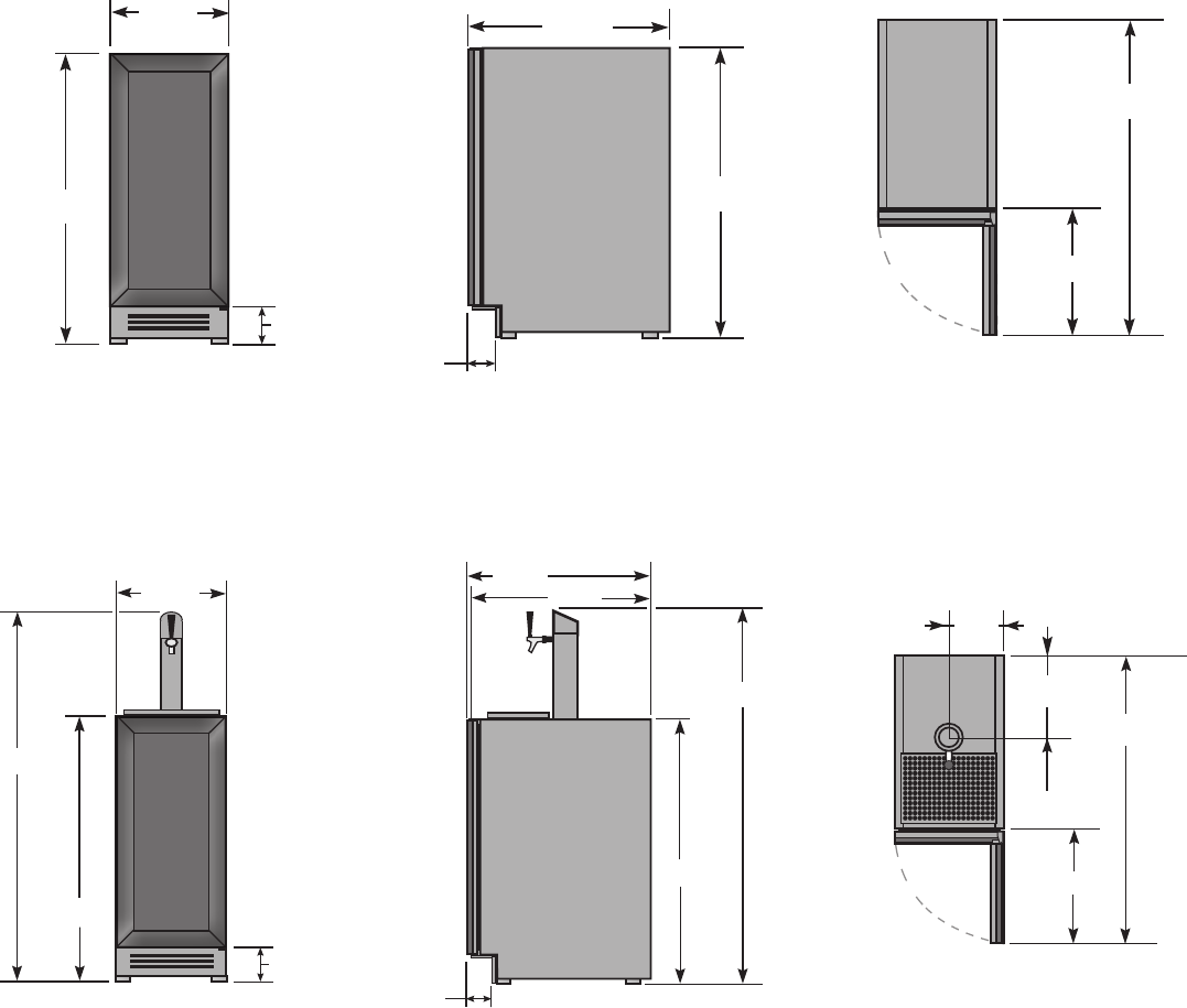
15" SINGLE TAP UNIT ACCOMMODATES
(1) SLIM 1/4 BARREL OR (1) 1/6 BARREL.
*
INCLUDING 3/4" THICK PANEL (PROVIDED BY OTHERS)
DIMENSIONS MAY VARY BY ±
1
/
8
"
16
1
/4"
37
7
/8"
14
7
/8"
34
1
/4"
7
1
/2"
10
1
/4"
4
1
/8"
34
1
/4"
50"
3
3
/4"
50"
23
1
/8"
23
7
/8"










