installation guide

14
TRUE RESIDENTIAL
®
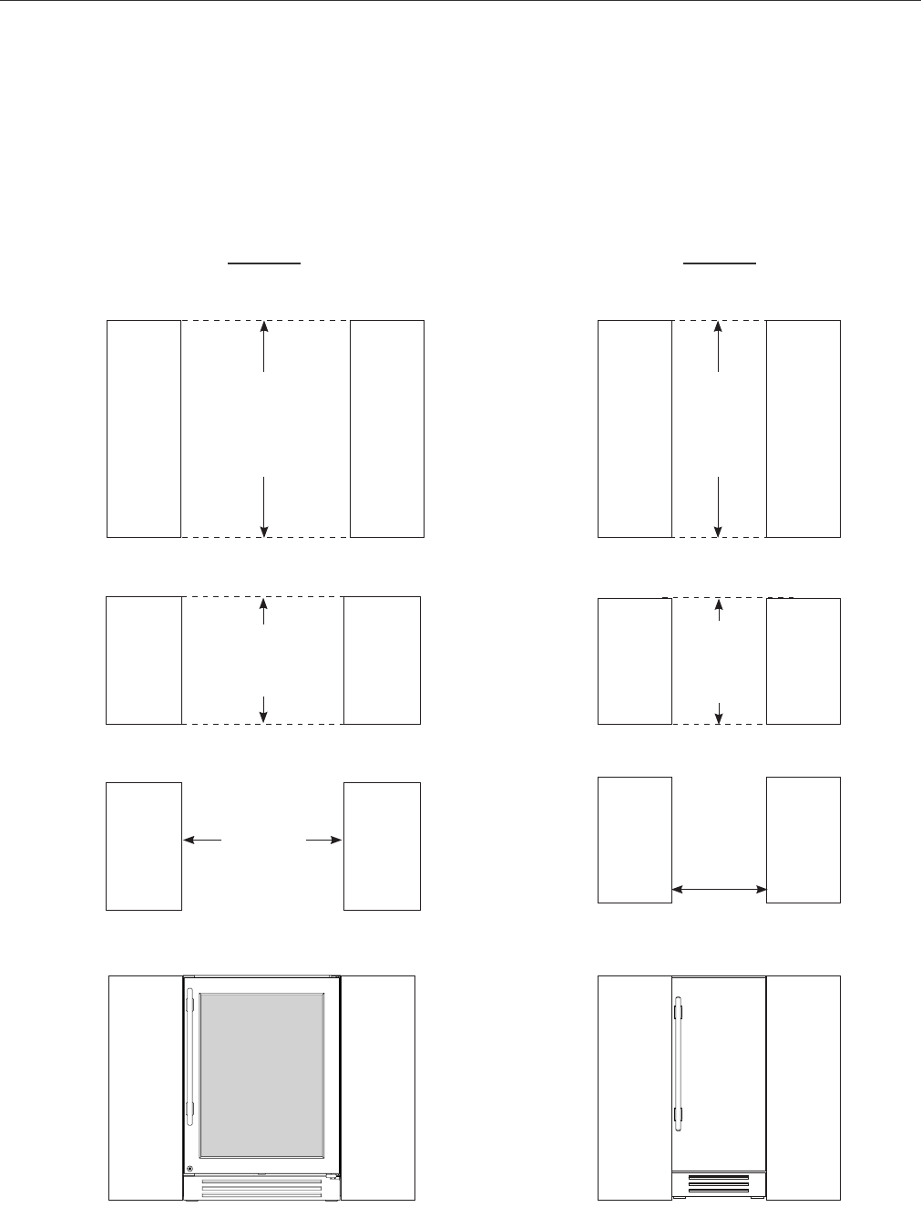
INSTALLATION SPECIFICATIONS - SOLID (OP) AND GLASS FRAMED PANEL (OG)
True’s units with Solid and Glass Framed Panels are designed to be inserted into a cabinet opening or free
standing. Below are recommended dimensions for rough opening.
TRUE’S CABINETS ARE UL RATED FOR USE IN OUTDOOR SETTINGS.
IN OUTDOOR LOCATIONS WHERE THE AMBIENT TEMPERATURE REGULARLY EXCEEDS 95˚F, IT IS RECOMMENDED
TO VENT THE REAR OF THE CUT OUT OPENING IN THE AREA SHOWN BELOW FOR OPTIMUM PERFORMANCE.
THE RECOMMENDED CUT OUT SIZE IS 4" X 10".
23
7
/
8
"
29
3
/
4
"
4
1
/
8
"
Rough Opening
HEIGHT
34
1/2
"
Front view
of unit
between
cabinets
Rough Opening
DEPTH
24"
Rough Opening
WIDTH
24"
Rough
Opening
HEIGHT
34
1/2
"
Rough
Opening
DEPTH
24"
Front
view of
unit
between
cabinets
Rough
Opening
WIDTH
15"
24 INCH 15 INCH










