User Manual

THINGS YOU NEED TO KNOW
WARNINGS:
l
This cooker must be installed by a qualified
electrician/competent person. Safety may be
impaired if installation is not carried out in
accordance with these instructions.
l
This cooker must be earthed.
l
Do not remove the screws from the earth tab
extending from the oven mains terminal block
(Fig. 6).
l
Before connecting the cooker make sure that the
voltage of your electricity supply is the same as
that indicated on the rating plate. The rating plate
can be seen by opening the oven door and
looking below the oven door seal.
l
Do not alter the electrical circuitry of this cooker.
THINGS TO NOTE
l
This cooker is designed to be fitted in cabinets of
the recommended dimensions as shown (Fig. 2).
l
If your cabinet interior dimension is between
565-570mm the oven may still be fitted. However
a minor modification to the cabinet will be
required.
l
The dimensions given provide adequate air
circulation around the unit within the cabinet,
ensuring compliance with BS EN60-335.
l
Enquiries regarding the installation of the cooker
point, if required, should be made to your
Regional Electricity Company to ensure
compliance with their regulations.
l
The cooker socket switch should be outside the
cabinet but within 2m of the cooker to make it
accessible to switch off the cooker in case of an
emergency.
l
To protect the hands, wear gloves when lifting
the oven into its housing.
NOTE: HOUSE CIRCUIT
Earth leakage and continuity tests must be carried
out before the cooker is connected to the mains
supply and re-checked after fitting.
GETTING THINGS READY
CHOICE OF ELECTRICAL CONNECTION
l
There are three possible ways to connect your
cooker. In each case the cooker should be
operated using at least 6mm² twin core and earth
PVC insulated multicore cable. Please choose
from the most appropriate after reading the
different methods:-
a) By connecting the cooker to a cooker point
(having a double pole isolating switch with at
least 3mm contact separation in all poles and
neutral) and protected with a fuse or miniature
circuit breaker at your mains fuse box.
b) By connecting the cooker together with a hob
directly to a cooker point(s). Having a double
pole isolating switch with at least 3mm contact
separation in all poles and neutral.
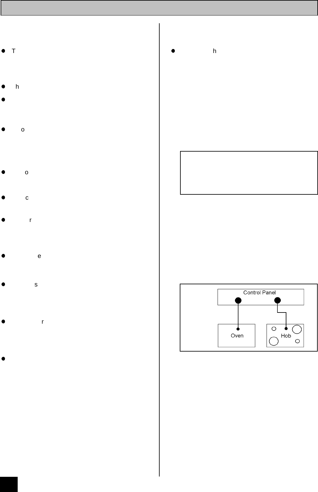
c) If you wish to connect an oven and a hob to a
cooker point you can by connecting the oven and
hob separately to the cooker point. Oven and
hob units should be separately connected to a
control panel. See Fig. 1.
8
Subject to Regional Electricity Companies
regulations if you wish to connect the oven
and hob to the power supply you may use
one of the following two methods:-
INSTALLATION INSTRUCTIONS
Fig. 1










