Manual
Phase III
®
16
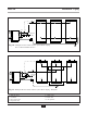
H
H
High Voltage
120
V.A.C.
24
V.A.C.
Room
Thermostat
Zone 1
Additional zones
Additional zones may
be added as shown above
Transformer
(Power)
Zone Valve
Zone Valve
1
2C
Water Heater
Thermostat
Snap-Set
Water
Heater
Zone
*Isolation Relay
Boiler
Thermostat
Terminals
* Use isolation relay on
3-wire zone valves with
non-isolated end switches.
Transformer and boiler
control can burn out if
isolation relay is not used
Priority
Relay
H
H
High Voltage
120
V.A.C.
24
V.A.C.
Room
Thermostat
Zone 1
Additional zones
Additional zones may
be added as shown above
Transformer
(Power)
Zone Valve
Zone Valve
1
2C
Water Heater
Thermostat
Snap-Set
Water
Heater
Zone
Boiler
Thermostat
Terminals
High Voltage
Low Voltage
Boiler Low Voltage
Priority
Relay
Typical 3-wire Zone Valve Zoning,
with Domestic Priority
Installation - Wiring
Typical 4-wire Zone Valve Zoning,
with Domestic Priority
Fig. 12:
Fig. 13:










