Use and Care Manual

Phase III
®
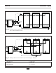
Recommended for applications in which there is a
large water consumption in short period of time.
A maximum of 3 water heaters may be piped in series.
Utilize the lead (hot water outlet) Phase III
®
tank ther-
mostat to control system temperature.
Install automatic mixing valve at either the hot water
outlet of the water heater system or at each hot water
fixture.
Each tank should be piped with a drain as shown in
Fig. 1.
13
Installation - Piping
Circulator
Recirculated
Water
Automatic
Mixing Valve
Hot Water
Outlet
Cold Water
Inlet
T&P
Relief
Valve
Cold Water
Inlet
Isolation
Valve
Circulator
Automatic
Mixing Valve
Hot Water
Outlet
Cold Water
Inlet
T&P
Relief
Valve
Cold Water
Inlet
Isolation
Valve
Recirculated
Water
Multiple TR Series Water Heater System
Domestic Piping - Parallel
Multiple TR Series Water Heater System
Domestic Piping - Series
Recommended for most applications.
Any one water heater tank thermostat may be uti-
lized to control system temperature.
Install automatic mixing valve at either the hot
water outlet of the water heater system or at each
hot water fixture.
Each tank should be piped with a drain as shown in
Fig. 1.
Fig. 8:
Fig. 9: