Instructions / Assembly

Phase III
®
10
Cold Water
Inlet
6
1
12" min.
Heat Trap
Loop
12" min.
Heat Trap
Loop
4
1
5
5
10
9
8
11
13
M
H
C
Cold Water
Inlet
6
1
11
12" min.
Heat Trap
Loop
12" min.
Heat Trap
Loop
4
1
5
5
10
9
8
13
M
H
C
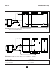
Commonwealth of Massachusetts
Domestic Piping
TR Series
1. Shut-off valves
4. T&P relief valve
5. Unions
6. Backflow preventer or pressure reducing valve
8. Vacuum breaker
9. Drain valve
10. Thermal expansion tank (potable)
11. Dip tube - Draining per Chart 1
13. Mixing valve (optional)
Figure 3
Commonwealth of Massachusetts
Domestic Piping
SMART Series
Installation - Piping