Instructions / Assembly
Phase III
®
9
Cold Water
Inlet
6
1
Recirculating
Loop
2
3
4
1
5
5
1
10
9
12" min.
Heat Trap
Loop
12" min.
Heat Trap
Loop
11
Cold Water
Inlet
6
1
Recirculating
Loop
2
11
3
12" min.
Heat Trap
Loop
12" min.
Heat Trap
Loop
4
1
5
5
1
10
9
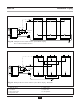
Standard Installation
Domestic Piping with Recirculation
TR Series
1. Shut-off valves
2. Recirculation circulator
3. Flow check valve
4. T&P relief valve
5. Unions
6. Backflow preventer or pressure reducing valve(*)
9. Drain valve
10. Thermal expansion tank (potable)
11. Dip Tube - Recirculation per Chart 1
(*) Optional devices may be required by local codes.
Standard Installation
Domestic Piping with Recirculation
SMART Series
Figure 2
Installation - Piping










