User Manual
Manuals
Brands
Trane Manuals
Microphones
DX1B080A9H31B
1
2
3
4
5
6
7
8
9
10
18-CD22D1-8
5
Installer’
s Guide
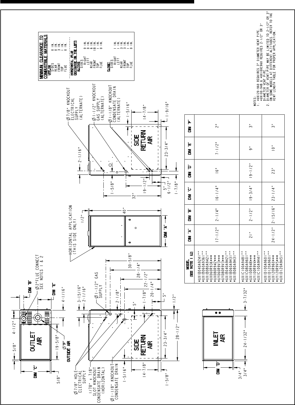
From Dwg. 21C341884 Rev. 1
*UX1-H OUT
LINE DRA
WING
(ALL DIMENSIONS ARE IN INCHES)
1
...
2
3
4
5
6
7
...
...
38