User Manual

18-CD22D1-8 21
Installer’s Guide
;
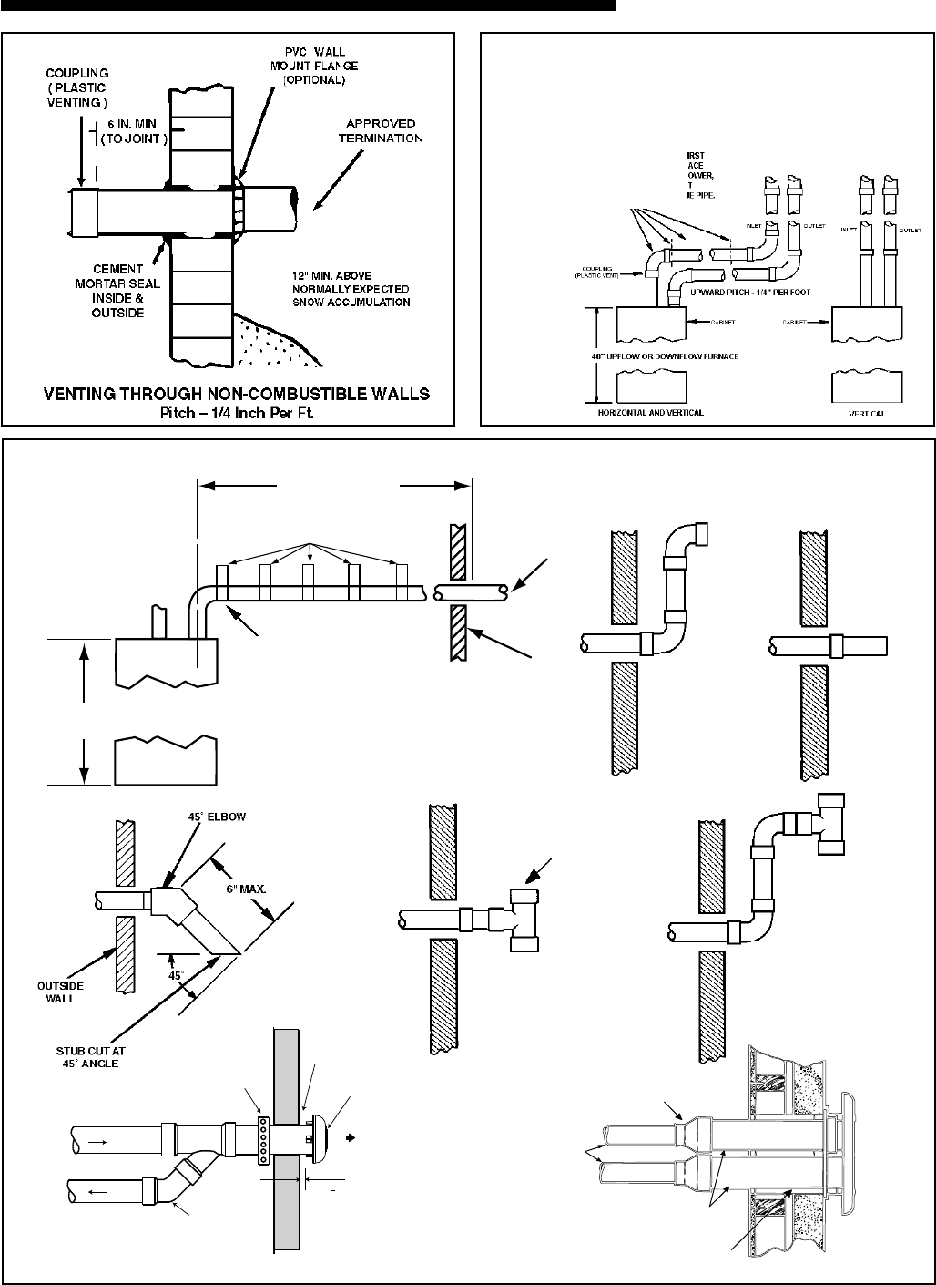
SUPPORT HORIZONTAL PIPE EVERY 3'
0" WITH THE FIRST SUPPORT AS CLOSE
TO THE FURNACE AS POSSIBLE.
INDUCED DRAFT BLOWER, HOUSING,
AND FURNACE MUST NOT SUPPORT
THE WEIGHT OF THE FLUE PIPE.
NOTE: VENT AND INLET MUST BE SUPPORTED
AT A MAXIMUM OF 3' INTERVALS
4
0" UPFLOW OR
DOWNFLOW MODELS
SEE VENTING TABLE
OUTSIDE
WALL
NOTE: ANY FITTINGS PASSING
THROUGH AN UNHEATED SPACE
MUST BE INSULATED.
FIRST SUPPORT SHOULD BE AS
CLOSE TO FURNACE CONNECTION
AS POSSIBLE.
UPWARD PITCH -- 1/4" PER FOOT
STRAPS OR OTHER SUITABLE SUPPORTS
AT MAXIMUM OF 3'-0" INTERVALS
COMBUSTION
AIR INLET
USE ONLY
APPROVED
TERMINATIO
N
TEE
3" PIPING
2", 2-1/2"
or 3" PIPING
REDUCING
COUPLING,
FIELD SUPPLIED
IF NEEDED
SEAL ALL
WALL CAVITIES
BAYVENT200B
z
RAIN CAP
COMBUSTION AIR
STRAP
(FIELD SUPPLIED)
COMBUSTION
AIR
VENT
ELBOW
(FIELD
SUPPLIED)
VENT
1" + 1/2"
BAYAIR30AVENTA
l










