Manual

CabRac INSTRUCTION MANUAL 3
TracRac Inc. 994 Jefferson Street, Fall River, MA 02721-4839 * 800-501-1587
LEFT AND RIGHT UPRIGHT ASSEMBLY
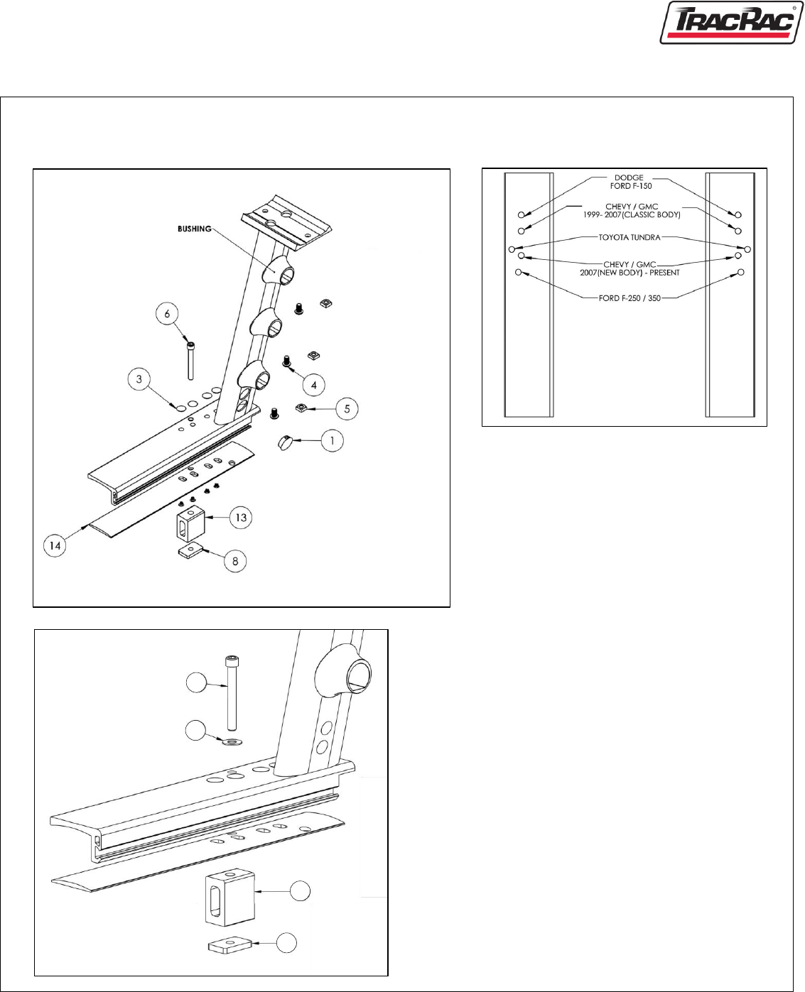
1. Using Figure 2 select the correct mounting hole
for your truck. Once hole is selected, plug the
remaining holes using the plastic ratcheting
rivets (item 3).
2. Assemble 3/8"-16 x 3.0" socket head cap screw
(item 6) and 3/8" washer (item 10). Insert the
assembly through the selected mounting hole
for your truck. On the underside of the upright
base insert the rubber shim*, then the rubber
expansion block, finally thread on the brass
pocket nut (item 8). Reference Figure 3. Note:
The brass pocket nut shall be tightened so that
the rubber block and nut do not rotate freely.
They will be fully tightened later on in the
assembly.
3. Insert 3/8"-16 x .625" button head cap screw
(item 4) into screw hole located on the underside
of the CabRac bushing. At the same time thread
on the stainless steel square nut (item 5) only
so that the button head cap screw does not fall
out. This will be tightened down later on in the
installation. Reference Figure 1.
4. Repeat step 3 for the remaining bushings.
5. Repeat steps 1-4 for the remaining uprights.
* There is a left and right rubber shim. The hole
pattern will match its corresponding upright base.
8
Figure 3.
Figure 2.
Figure 1.
6
10
9








