Installation Instructions
Table Of Contents

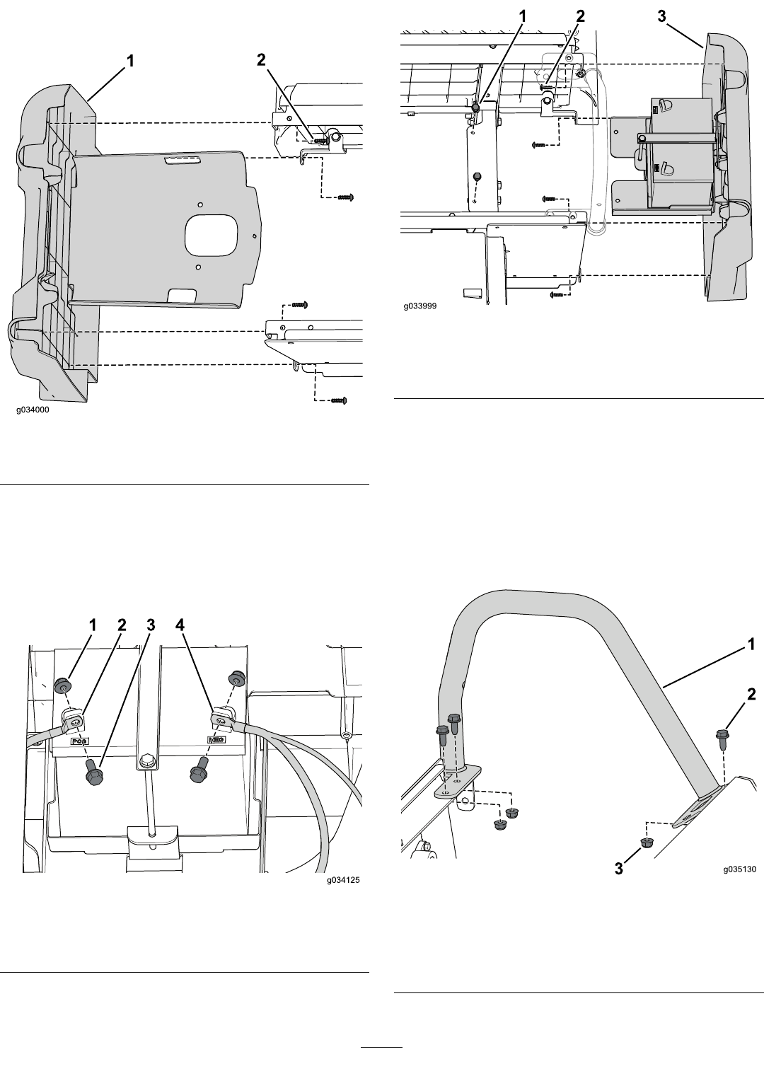
6.Retireosquatroparafusosquexamopainelesquerdo
aoconjuntodobancoinferior(Figura3).
g034000
Figura3
1.Painelesquerdo
2.Parafuso
Retiraracoberturadireita
Nota:Guardetodasasferragensqueretirouneste
procedimento.
1.Desligueocabonegativo(-)dabateriaedepoisocabo
positivo(+).
g034125
Figura4
1.Porca
3.Parafuso
2.Cabopositivo(+)4.Cabonegativo(–)
2.Removaosdoisparafusosangeadosqueprendemo
tabuleirodabateriaàestrutura(Figura5).
g033999
Figura5
1.Parafusoangeado3.Conjuntodopaineldireito
2.Parafusoautorroscante
3.Retireosquatroparafusosquexamopaineldireitoao
conjuntodobancoinferior(Figura5).
Remoçãodosuporteparaasancas
esquerdo
Retireeguardeostrêsparafusosangeadoseporcas
angeadasqueprendemosuporteparaasancasàmáquina
(Figura6).
g036760
Figura6
1.Suporteparaasancas
(curto)
3.Porcaangeada(5/16
pol.)
2.Parafusoangeado
(5/16x¾pol.)
4