Installation Instructions
Table Of Contents

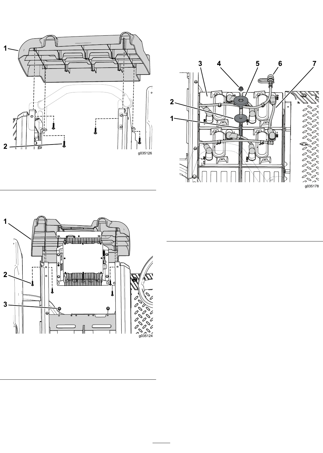
3.Removaosquatroparafusosautorroscantesque
prendemacoberturadoladodireitoàmáquina(Figura
55).
g035126
Figura55
1.Conjuntodacobertura
lateral
2.Parafusoautorroscante
4.Removaosdoisparafusosquexamosuportedo
carregadoraotabuleirodabateria(Figura56).
g035124
Figura56
1.Conjuntodacobertura
lateral
3.Parafuso
2.Parafusoautorroscante
5.Removaosquatroparafusosautorroscantesque
prendemacoberturadoladoesquerdoàmáquina
(Figura56).
Retirarasbaterias
Nota:Guardetodasasferragensqueretirouneste
procedimento.
1.Removaaporcaangeada,axaçãodabateriaea
anilhaqueprendeasbateriasnotabuleirodabateria
frontal(Figura57).
g035178
Figura57
1.Hastedaxação
5.Fixação
2.Anilha6.Mangueiradarega
3.Bateria
7.Cabodabateria
4.Porcadebloqueio
2.Desligueamangueiradaregadasbateriasnotabuleiro
dabateriadianteiro(Figura57).
18