Installation Instructions
Table Of Contents

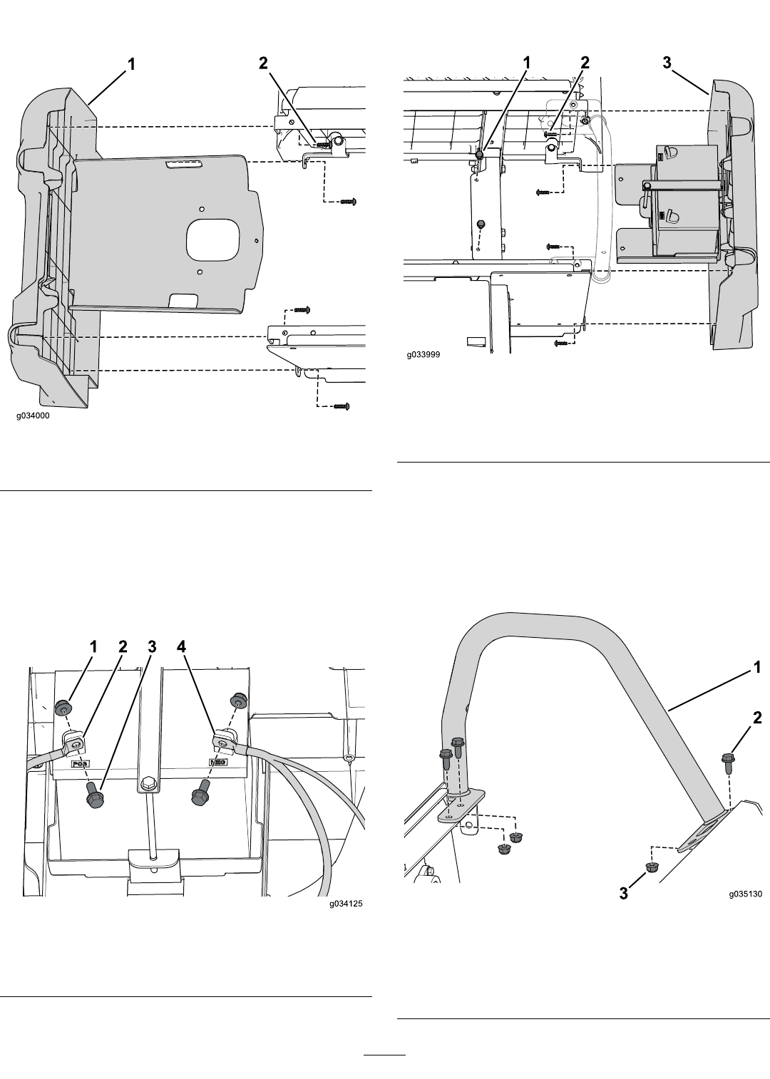
6.Irrotaneljäruuvia,joillavasemmanpuoleinenpaneeli
onkiinnialemmassaistuinkokoonpanossa(Kuva3).
g034000
Kuva3
1.Vasenpaneeli2.Ruuvi
Oikeanpuoleisensuojuksenirrotus
Huomaa:Säilytäkaikkitässätoimenpiteessäirrotettavat
kiinnitystarvikkeet.
1.Irrotaakustaensinmiinuskaapeli(–)jasitten
pluskaapeli(+).
g034125
Kuva4
1.Mutteri3.Pultti
2.Pluskaapeli(+)4.Miinuskaapeli(–)
2.Irrotakaksilaippapulttia,joillaakkualustaonkiinni
rungossa(Kuva5).
g033999
Kuva5
1.Laippapultti
3.Oikeanpuoleinen
paneelikokoonpano
2.Itsekierteittäväruuvi
3.Irrotaneljäruuvia,joillaoikeanpuoleinenpaneelion
kiinnialemmassaistuinkokoonpanossa(Kuva5).
Vasemmanpuoleisenlannetuenirrotus
Irrotajasäilytäkolmelaippapulttiajalaippamutteria,joilla
lannetukionkiinnitettykoneeseen(Kuva6).
g036760
Kuva6
1.Lannetuki(matala)
3.Laippamutteri
(5/16tuumaa)
2.Laippapultti(5/16×
3/4tuumaa)
4