Installation Instructions
Table Of Contents
- .
- 1 De transportkist verwijderen en de wielsets monteren
- 2 De stuurkolom monteren
- 3 De parkeerrem monteren
- 4 De schakelkabel aansluiten op de schakelhendel (enkel benzinemodellen)
- 5 De acculader monteren (uitsluitend elektrische modellen)
- 6 Het gaspedaal, de contactschakelaar en de omzettermodule verwijderen (uitsluitend elektrische modellen)
- 7 De spanning van de parkeerrem afstellen
- 8 De steunbeugels van de bodemplaat monteren
- 9 De voet van de stoel monteren
- 10 De voetplaat en het dashboard monteren
- 11 Het gaspedaal monteren (uitsluitend elektrische modellen)
- 12 De kabelboom monteren
- 13 De spatborden monteren
- 14 De chokekabel leiden en aansluiten (enkel benzinemodellen)
- 15 De afdekking van de voetplaat monteren
- 16 De brandstoftank monteren (uitsluitend benzinemodellen)
- 17 De accu monteren (uitsluitend benzinemodellen)
- 18 De accu aankoppelen (uitsluitend benzinemodellen)
- 19 De accu's aankoppelen (uitsluitend elektrische modellen)
- 20 De schakelkabel nazien en afstellen (enkel benzinemodellen)
- 21 De motorkap plaatsen
- 22 De trekhaak monteren
- 23 De stootvlakken van de laadbakvergrendeling monteren
- 24 Stuurwiel monteren
- 25 De montage voltooien

19.Bevestigdekabelvanhetlaadstatuslampje
aandekabelbinderomdeklemdieueerder
gemonteerdhebt(Figuur32).
20.Wikkelhetovertolligeeindvandekabelop
enbevestighetaandehandgreepmeteen
kabelbinder(Figuur32).
21.Draaialhetlosgemonteerdebevestigingsmate-
riaalvast.
10
Devoetplaatenhet
dashboardmonteren
Benodigdeonderdelenvoordezestap:
1Dashboard
1Dashboardversteviging
8
Zelftappendeschroef(¼"x¾")
1
Bout(¼"x¾")
3
Flensmoer(¼")
1Verbindingsbeugeltussenvoetplaatendashboard
14
Torxschroef(¼"x1¼")
1Voetplaat
2Buitenstedashboardbeugel
1Koplampsticker
1
Stickercontactschakelaar
1
Chokekabel
2
Flensmoer(nr.10)
2
Zeskantschroefmetsleuf(nr.10x½")
1
Claxon
Procedure
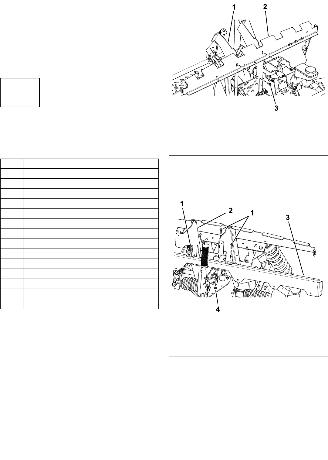
1.Monteerdedashboardversteviginglosjesop
dedashboardbeugels;gebruik2zelftappende
schroeven(¼"x¾")zoalsinFiguur33.
g191694
Figuur33
1.Dashboardbeugel
3.Zelftappendeschroef
(¼"x¾")
2.Dashboardversteviging
2.Monteerdeverbindingsbeugeltussenvoetplaat
endashboardopdedashboardbeugel;gebruik
hierbij3zelftappendeschroeven(¼"x¾")en
eenensmoer(¼")zoalsafgebeeldopFiguur
34.
g198779
Figuur34
1.Zelftappendeschroef
(¼"x¾")
3.Verbindingsbeugeltussen
voetplaatendashboard
2.Dashboardbeugel
4.Flensmoer(¼")
3.Monteerdevoetplaatophetvloerdeelmet2
torxschroeven(¼"x1¼");zieFiguur35.
13










