
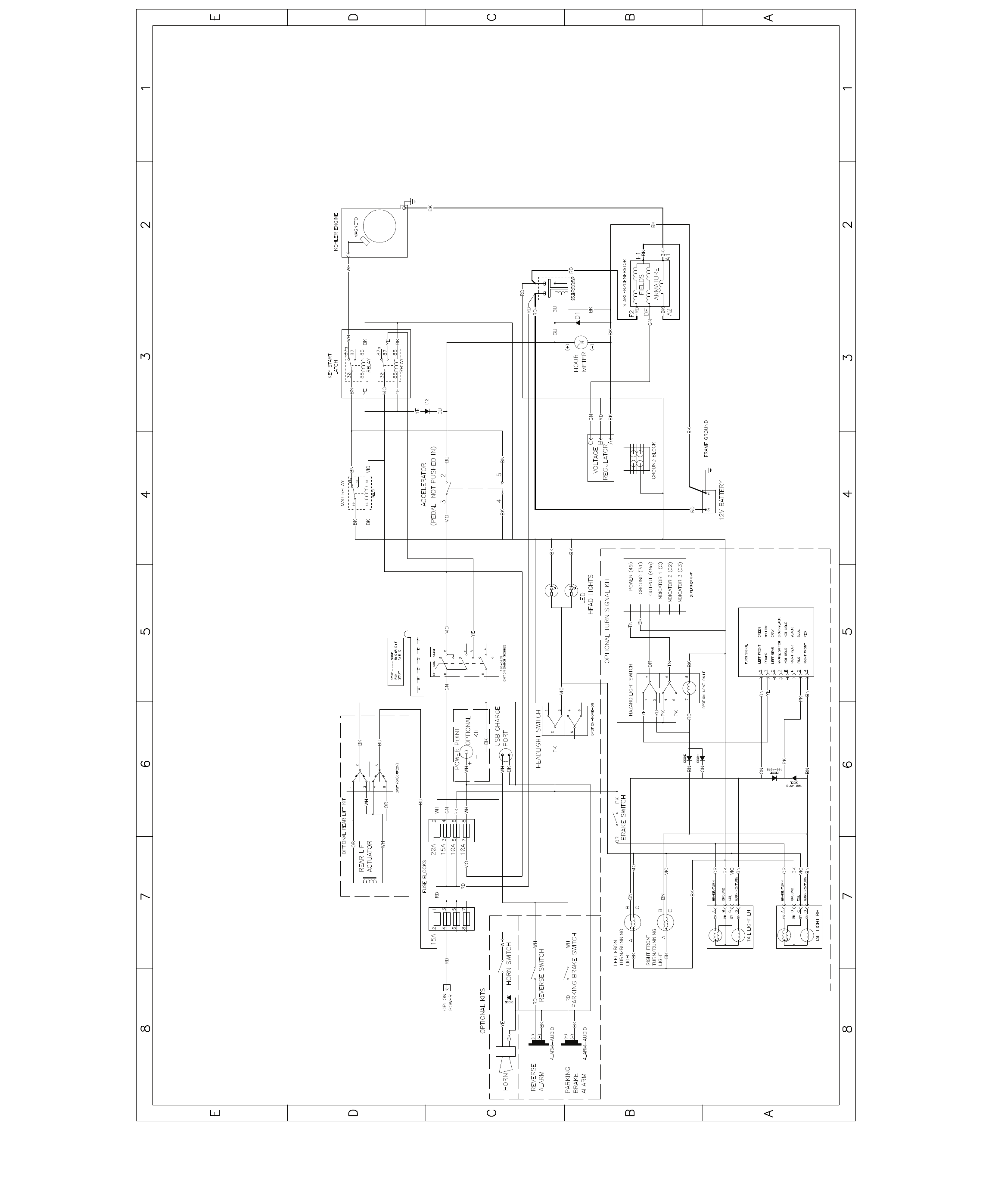
ModelNo.07040,07042,07130,07130TC
122-0226RevC
2of2
07040:SerialNo.401061694andAfter
07042:SerialNo.401371190andAfter
07130:SerialNo.400000000andAfter
07130TC:SerialNo.400000000andAfter
g222994
©2017—TheToro®Company,8111LyndaleAvenueSouth,Bloomington,MN55420
FormNo.3401-662RevB