Installation Instructions
Table Of Contents

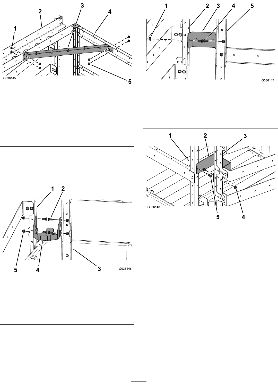
Рисунок7
1.Каретныйболт(5/16x
3/4дюйма)
4.Переднийопорный
кронштейн(сдвумя
отверстияминакаждой
стороне).
2.Кронштейнтрубы5.Фланцеваягайка(5/16
дюйма)
3.Поперечныйопорный
кронштейн
8.Установитекреплениеогнетушителянабоковой
вертикальныйкронштейнрамыипередний
вертикальныйкронштейнрамыспомощью4
каретныхболтов(5/16x3/4дюйма)и4фланцевых
гаек(5/16дюйма),какпоказанонаРисунок8.
Рисунок8
1.Боковойвертикальный
кронштейнрамы
4.Креплениеогнетушителя
2.Каретныйболт(на5/16x
3/4дюйма)
5.Фланцеваягайка(5/16
дюйма)
3.Переднийвертикальный
кронштейнрамы
9.Установитеопоруогнетушителя
или
кронштейн
бурадлялунокнабоковойвертикальный
кронштейнрамыипереднийвертикальный
кронштейнрамыспомощьюдвухкаретныхболтов
(5/16x3/4дюйма)идвухфланцевыхгаек(5/16
дюйма),какпоказанонаРисунок9илиРисунок10.
Рисунок9
1.Фланцеваягайка(5/16
дюйма)
4.Каретныйболт(5/16x
3/4дюйма)
2.Боковойвертикальный
кронштейнрамы
5.Переднийвертикальный
кронштейнрамы
3.Опораогнетушителя
Рисунок10
1.Переднийвертикальный
кронштейнрамы
4.Фланцеваягайка(5/16
дюйма)
2.Кронштейнбурадля
лунок
5.Каретныйболт(5/16x
3/4дюйма)
3.Боковойвертикальный
кронштейнрамы
10.Затянитевинтысшестиграннымиголовками(1/4
x3/4дюйма),установленныепривыполнении
действий,описанныхвпунктах1и3,смоментом
от1130Н∙см.
Послезавершенияустановкикомплектстойкикузова
будетвыглядетьследующимобразом:
Установканалевойстороне–Рисунок11
5