FIRE PIT User Manual

NOTE: DIAGRAMS & ILLUSTRATION NOT TO SCALE.
13
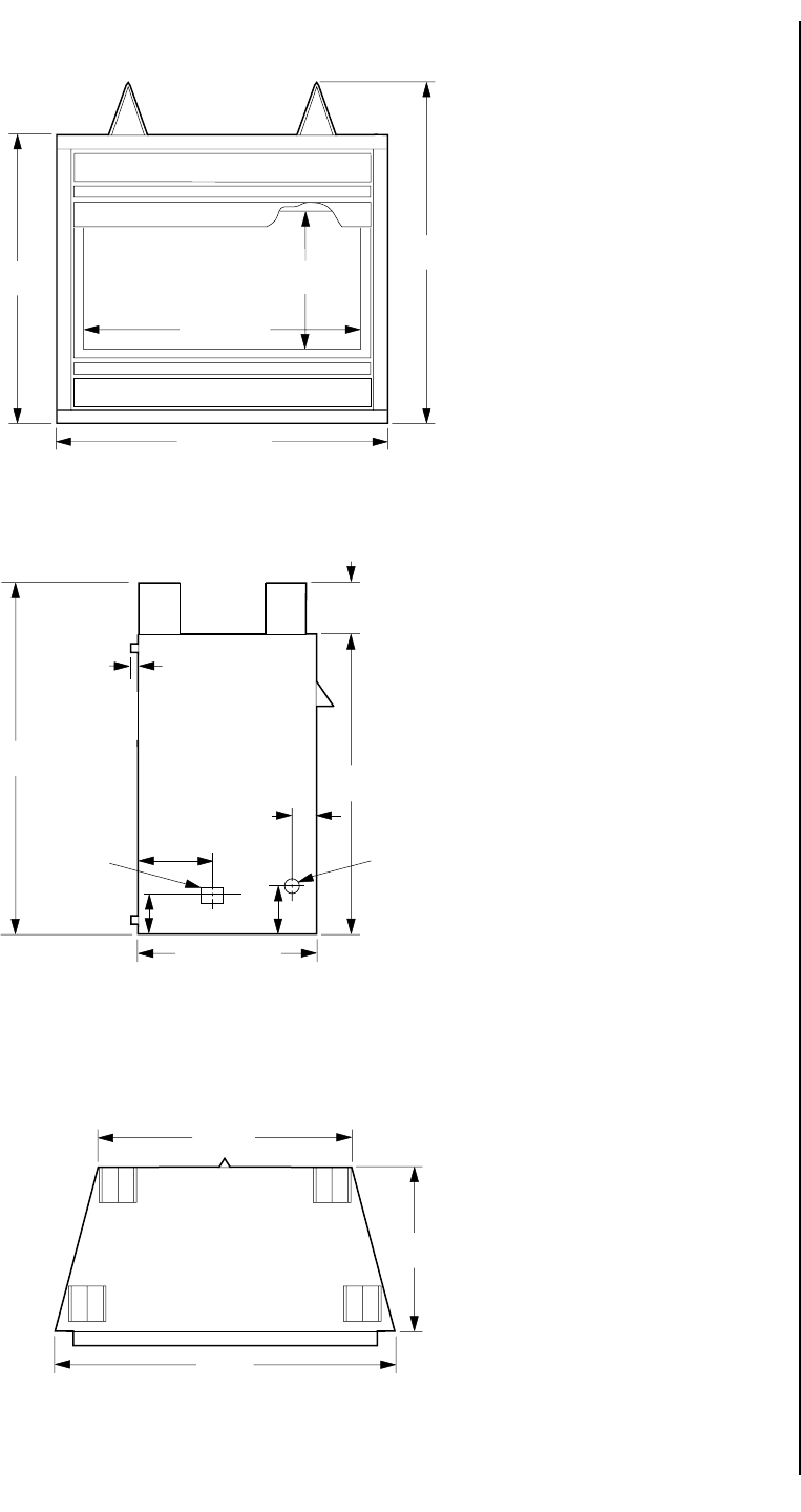
VF4000 SPECIFICATIONS
Figure 21
37"
(940 mm)
36" (914 mm)
30" (762 mm)
31-1/2"
(800 mm)
15"
(381 mm)
Front View
Left Side View
(Right Side View - Opposite)
Gas Line
Opening
J Box
Opening
8"
(203 mm)
3-3/4"
(95 mm)
3-1/2"
(89 mm)
Top View
27"
(686 mm)
36"
(914 mm)
15-1/2"
(394 mm)
31-1/2"
(800 mm)
37"
(940 mm)
15-1/2" (394 mm)
1/2
"
(13 mm)
5-1/2"
(140 mm)
3"
(76 mm)










