Technical Specifications
Manuals
Brands
Tile Redi Manuals
Bath
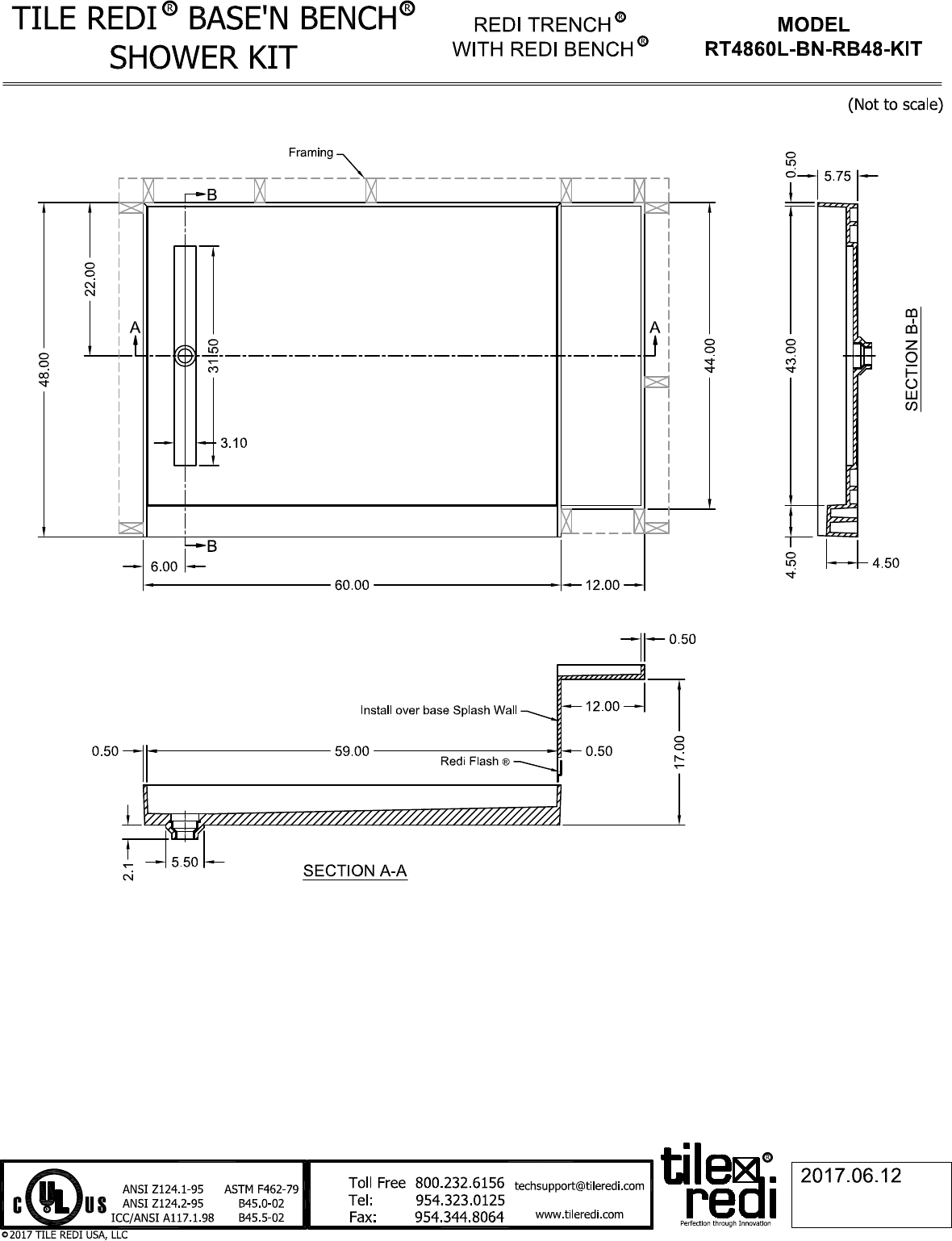
Base®'N Bench® 72"W x 48"D Shower Pan with Left Trench Drain (Brushed Nickel Designer Grate)
1
1
Summary of content (1 pages)
PAGE 1