Technical Specifications
Manuals
Brands
Tile Redi Manuals
Bath
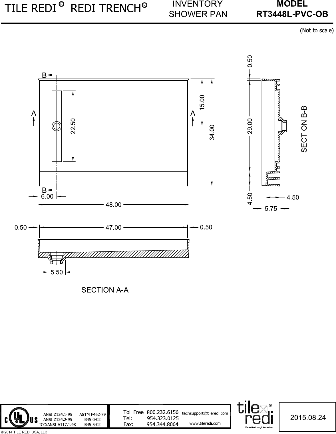
Redi Trench® 48"W x 34"D Single Curb Shower Pan with Left Trench Drain (Oil-Rubbed Bronze Designer Grate)
1
1
Summary of content (1 pages)
PAGE 1