Technical Specifications
Manuals
Brands
Tile Redi Manuals
Bath
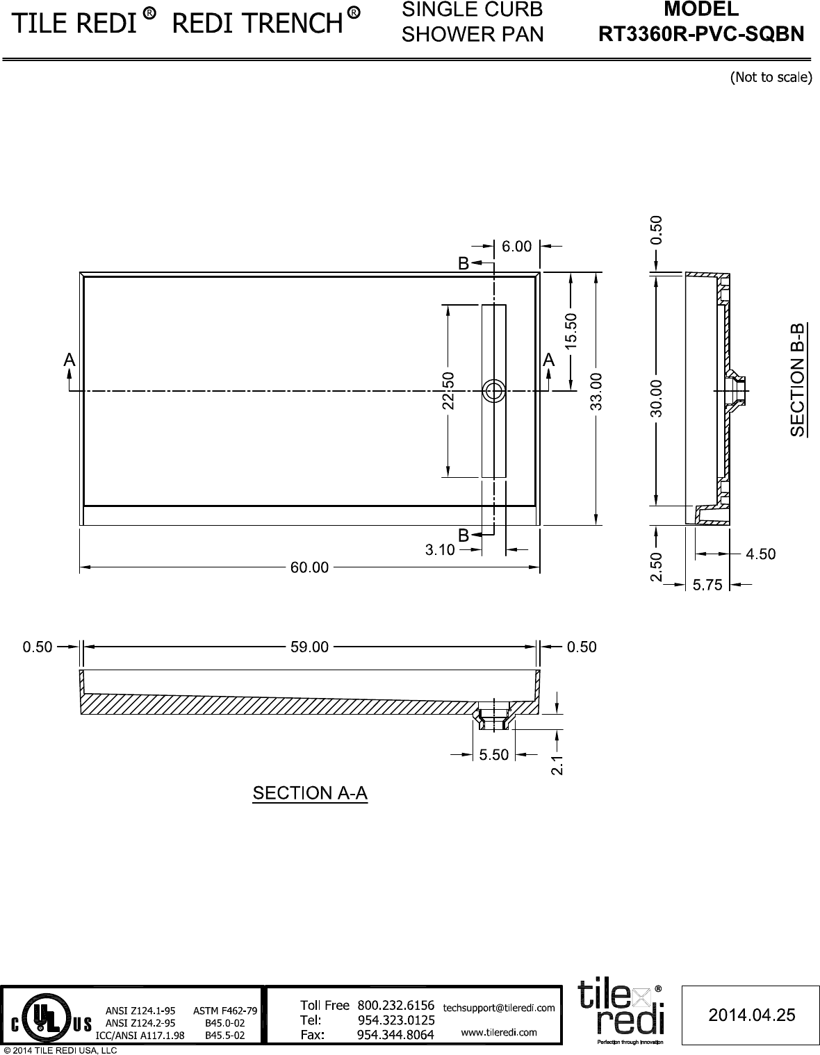
Redi Trench 60"W x 33"D Shower Pan with Right Trench Drain
1
1
Summary of content (1 pages)
PAGE 1