Specification
Manuals
Brands
Tile Redi Manuals
Bath
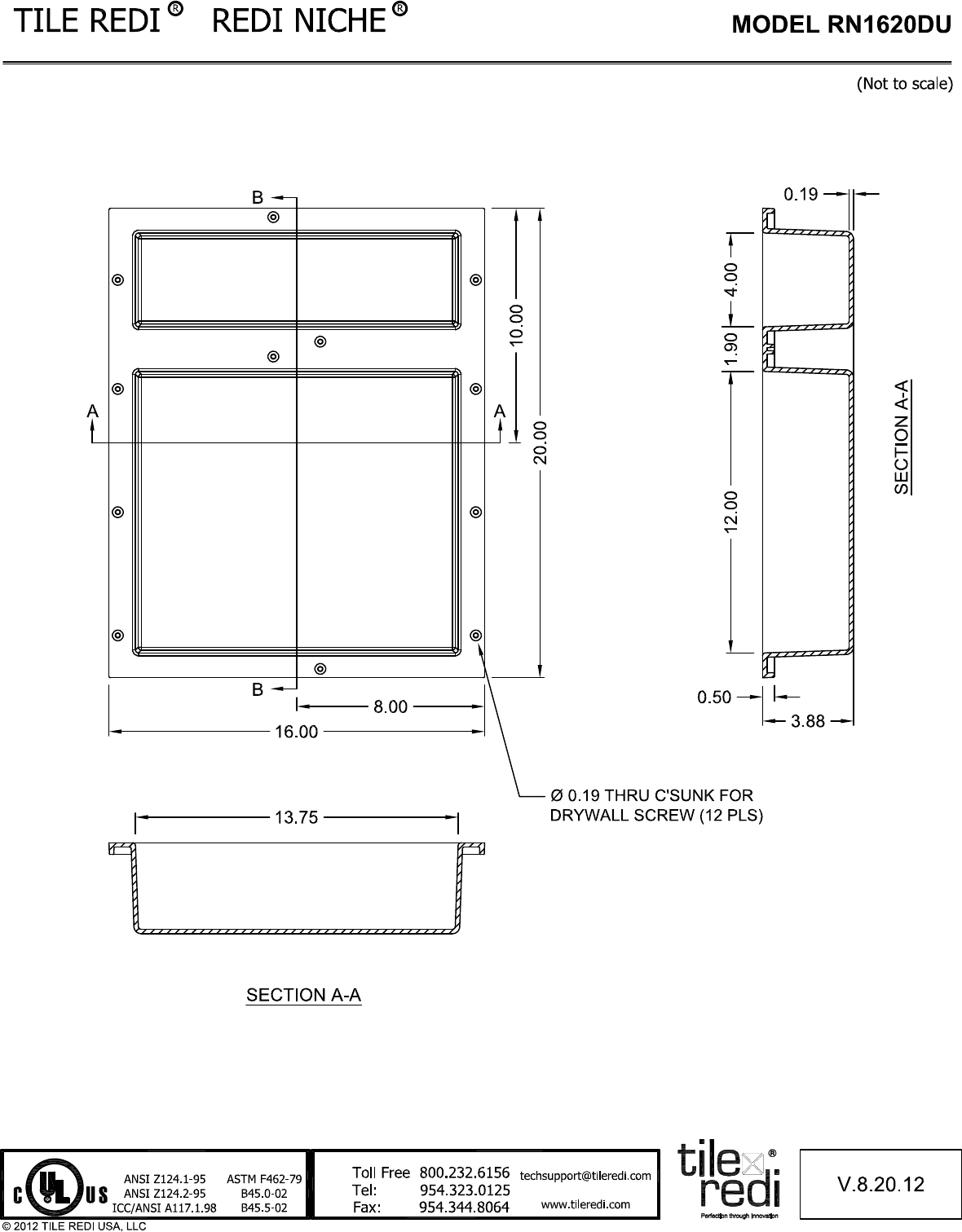
Redi Niche 16 in. x 20 in. Shampoo - Soap Double Niche Set
1
1
Summary of content (1 pages)
PAGE 1