Specification Sheet
Table Of Contents

These warranties give you specific legal rights and you may have other rights that vary from state to state. Full warranty and limited warranty from date of installation. For complete warranty
details, refer to your Use & Care manual, or ask your dealer.
Specifications are for planning purposes only. Refer to installation instructions and consult your countertop supplier prior to making counter opening. Consult with a heating and ventilation
engineer for your specific ventilation requirements. For the most detailed information, refer to installation instructions accompanying product or write to Thermador indicating the model
number. Specifications are correct at time of printing. Thermador reserves the right to change product specifications or design without notice. Some models are certified for use in Canada.
Thermador is not responsible for products that are transported from the U.S. for use in Canada.
1 800 735 4328 | USA THERMADOR.COM | CANADA THERMADOR.CA | ©2020 BSH HOME APPLIANCES CORPORATION. ALL RIGHTS RESERVED.
PRD606WESG
60-INCH DUAL-FUEL PRO GRAND
®
RANGE WITH
STEAM AND DOUBLE GRIDDLE
PROFESSIONAL SERIES, COMMERCIAL-DEPTH, PORCELAIN COOKTOP SURFACE
Page 6 of 6
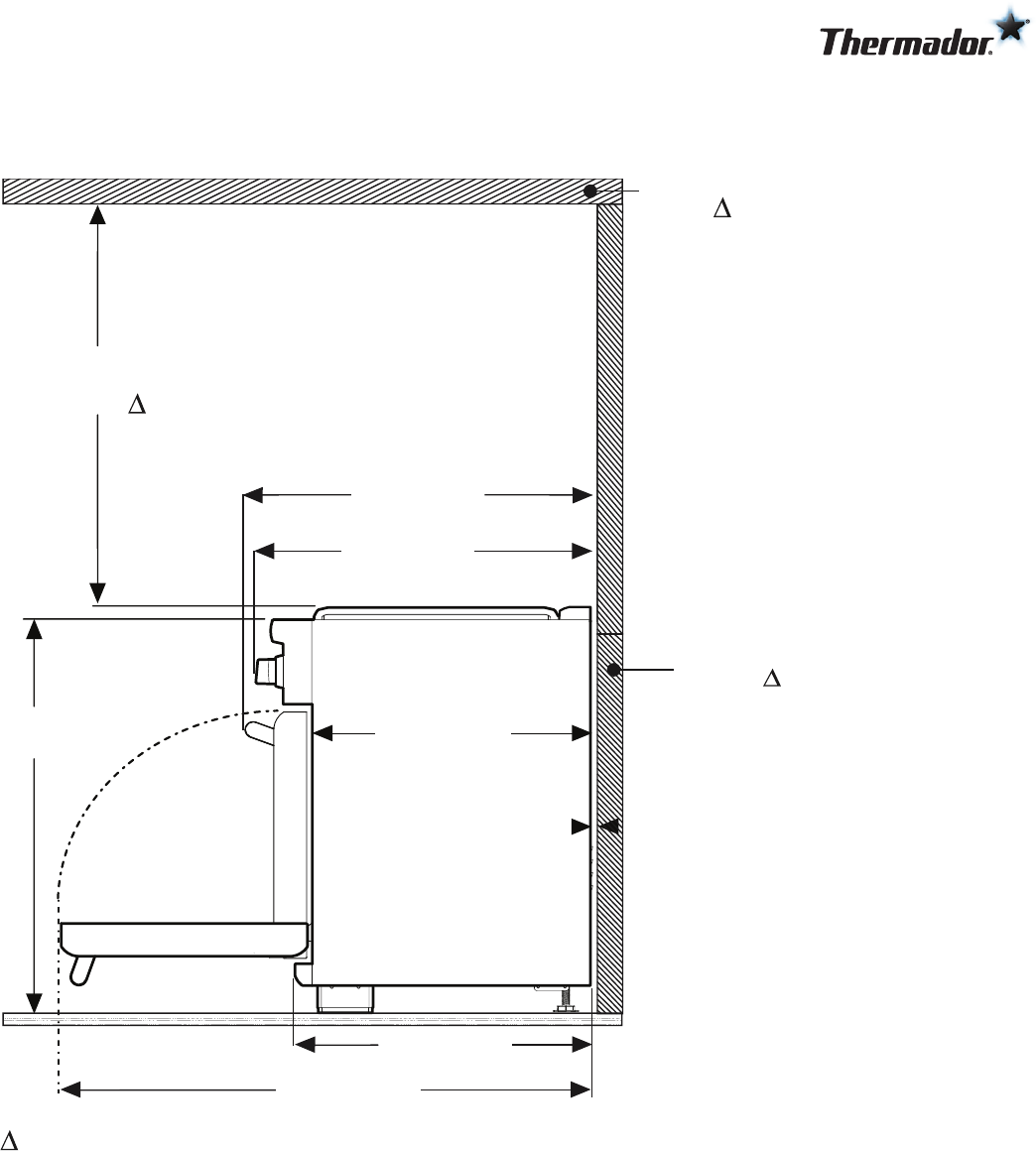
60-INCH RANGE DIMENSIONS AND CLEARANCE REQUIREMENTS WITH “FLUSH ISLAND TRIM”
Combustible
Materials
29
3
/8
" (746 mm)
36" (914 mm) min.
to combustible
materials
25
1
/8
" (638 mm)
max. recess depth
Combustible
Back Wall
35
7
/8
" (911 mm) Min.
36¾" (933 mm) Max.
25
3
/4
" (654 mm)
49
1
/8
"
(1248 mm)
Installation Clearances with Flush Island Trim
If an inner wall
is used under the
cantilever counter
top, there should be a
1
/8
" (3 mm) gap from
the rear of the range
to the inner wall.
As defined in the “National Fuel Gas Code” (ANSI Z223.1, Current Edition).
Clearances from non-combustible materials are not part of the ANSI Z21.1
scope and are not certified by CSA.
30
5
/8
" (778 mm)
8 / 20






