Specification Sheet
Table Of Contents

PRD606WESG
60-INCH DUAL-FUEL PRO GRAND
®
RANGE WITH
STEAM AND DOUBLE GRIDDLE
PROFESSIONAL SERIES, COMMERCIAL-DEPTH, PORCELAIN COOKTOP SURFACE
Page 5 of 6
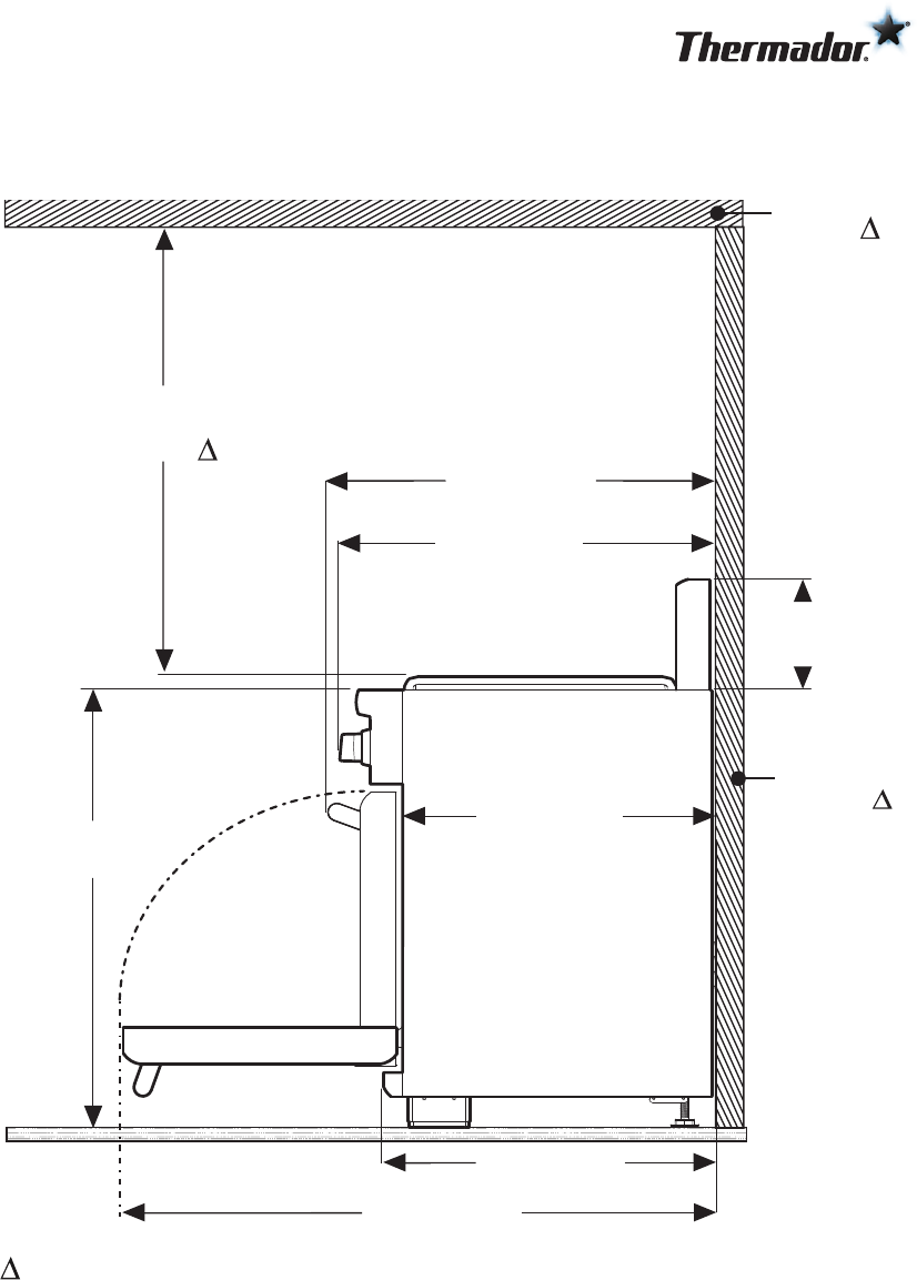
60-INCH RANGE DIMENSIONS AND CLEARANCE REQUIREMENTS WITH “LOW BACK”
NOTE: A 36-inch
minimum clearance is
required between the top
of the cooking surface
and the bottom of an
unprotected cabinet. A
30-inch clearance can be
used when the bottom
of the wood or metal
cabinet is protected by
not less than
11
/
44
inch of a
ame retardant material
covered with not less
than No. 28 MSG sheet
steel, 0.015 inch (0.4 mm)
thick stainless steel, 0.024
inch (0.6 mm) aluminum,
or 0.020 inch (0.5 mm)
thick copper.
7" (178 mm)
Lowback
Combustible
Materials
30
5
/
8
" (778 mm)
29
3
/
8
" (746 mm)
36" (914 mm) min.
to combustible
materials
25
1
/
8
" (638 mm)
max. recess depth
Combustible
Back Wall
35
7
/
8
" (911 mm) Min.
36¾" (933 mm) Max.
25
3
/
4
" (654 mm)
49
1
/
8
"
(1248 mm)
Installation Clearances with Low Backguard
As defined in the “National Fuel Gas Code” (ANSI Z223.1, Current Edition).
Clearances from non-combustible materials are not part of the ANSI Z21.1
scope and are not certified by CSA.
8 / 20






