Installation Manual

English 5
Installation Preparation
Installation Considerations
The chimney hood requires the ducting to be vented to the
outside. It cannot be used in conjunction with a
recirculation unit.
Hood installation height above a cooktop, rangetop or
range can vary. To obtain the necessary installation height
above a cooktop, rangetop or range, consult the
appliance's installation manual.
NOTICE:
The hood could incur some damage from heat if a
THERMADOR PROFESSIONAL series range or rangetop
is operated with multiple burners at high settings under a
hood that is installed at minimum clearances while the
hood is turned off.
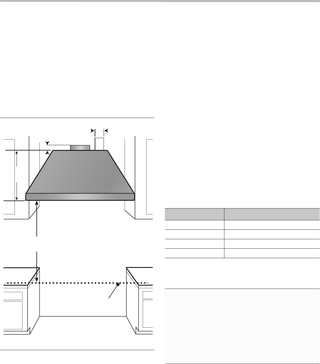
Hood Width
The hood width should be no less than the width of the
cooking surface. For proper performance, the housing must
cover the entire cooking surface.
Where space is not restricted, a wider hood can be used to
increase coverage.
The hood needs to be centered over the cooking surface
for best performance.
Distance From Cooking Surface
The installation height has a minimum height of 30”
(762 mm) from the cooking surface; however, it is
necessary to follow the cooking appliance manufacturer’s
installation instructions for proper hood height.
Unit Weight
When calculating the load for the housing support system,
be sure to consider the weight of the ventilation unit.
measurements in inches (mm)
Figure 2: Typical Hood Installation
Cooking
Surface
18”
18”
(457)
(457)
(457)
* Hood width should be no less
than the width of the cooking
surface.
E
* Follow cooking appliance
manufacturer’s recommendations
* 30" (762) min.
36” (914) max.
to Cooking Surface
* 30" (762) min.
36” (914) max.
to Cooking Surface
* 30" (762) min.
36” (914) max.
to Cooking Surface
3¼”
(83)
Electrical Location
6½” (165)
MODEL WEIGHT
HPCN36NS 33 lbs. (15 kg)
HPCB36NS 49 lbs. (22 kg)
HPCN48NS 47 lbs. (21 kg)
HPCB48NS 63 lbs. (29 kg)
NOTE: “HPCN” models do not include the weight of an
integral blower. The integral blower weight is an
additional 16 lbs. (7 kg). “HPCB” models do include the
weight of an integral blower.
IMPORTANT:
The supplied weights address only the ventilation unit
and blower. Installer must account for weight of any
materials of construction when calculating the total dead
weight load of installation, including but not limited to:
wall, tile, mortar, plaster, brick, finishes, partitions, and
other similarly incorporated architectural and structural
items. It is the responsibility of the owner and the
installer to determine if additional requirements and/or
standards apply to specific installations.










