Installation Manual

Español 15
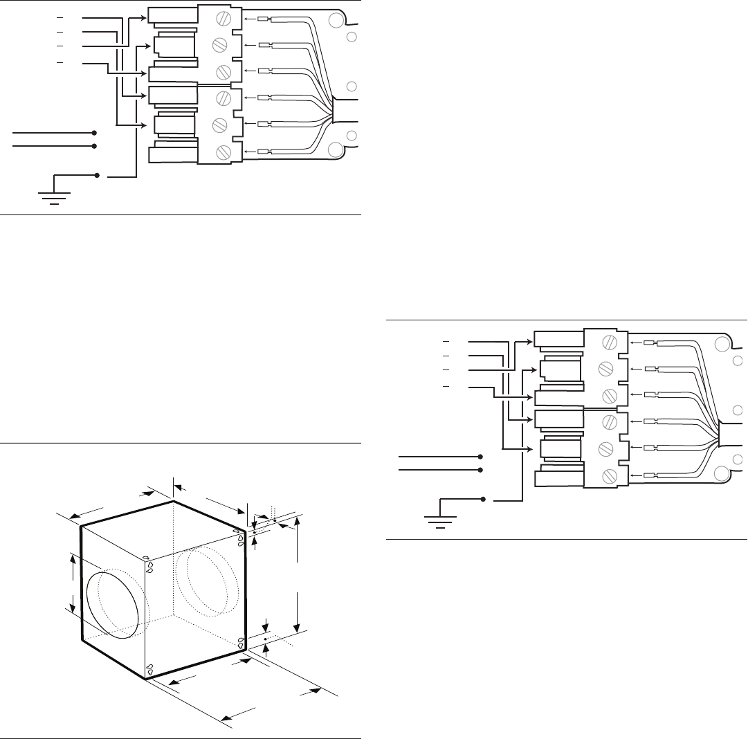
8. Conecte el ventilador a distancia con los cables del 
conector en espiral, como se muestra en la Figura 18. 
Conecte el cable verde (toma de tierra) del ventilador 
al tornillo de toma de tierra de la caja de conexiones. 
Consulte las instrucciones de instalación del ventilador 
para obtener más detalles sobre el cableado.
9. Cierre la tapa de la caja de conexiones.
Cableado de la campana con un ventilador 
en línea
Para minimizar el ruido en la cocina, estos ventiladores 
están montados a lo largo del conducto, en cualquier sitio 
entre el techo y la pared exterior. Si el conducto es fácil de 
acceder (en el ático, por ejemplo), esta opción puede ser 
atrayente.
1. Quite la tapa de la caja de conexiones, la que cubre los 
cables (consulte la Figura 5 en la página 9).
2. Quite las entradas circulares hundidas (Figura 5 en la 
página 9).
3. Instale los tubos protectores de 1 pulg. (25,4 mm).
4. Pase los cables negro, blanco y verde (núm. 12 AWG) 
por el tubo protector, de la fuente de alimentación 
eléctrica a la caja de conexiones.
5. Conecte los cables de la alimentación eléctrica a los 
cables de la campana en el siguiente orden: el negro 
con el negro, el blanco con el blanco, y fije el cable 
verde con el tornillo verde de toma de tierra del 
armazón. Utilice los conectores eléctricos de muelle 
proporcionados. 
• Si faltan o se pierden conectores, se deben 
reemplazar únicamente por conectores eléctricos 
de muelle compuestos por un mínimo de dos 
cables 18 GA y un máximo de cuatro cables 
14 GA, clasificados UL y CSA por 600 V y 302° F 
(150° C).
6. Conecte el conector en espiral al conector ubicado en 
el interior de la caja de conexiones.
7. Pase los cinco cables (núm. 14 AWG) por el tubo 
protector de 1 pulg. (25,4 mm), desde el ventilador a 
distancia hasta el segundo racor de conducto.
8. Conecte el ventilador a distancia con los cables del 
conector en espiral, como se muestra en la Figura 20. 
Conecte el cable verde (toma de tierra) del ventilador 
al tornillo de toma de tierra de la caja de conexiones. 
9. Cierre la tapa de la caja de conexiones. 
 Figura 18: Cableado de la campana con un ventilador a
distancia
Todas las medidas están en pulgadas (mm).
 Figura 19: VTI1010 Ventilador en línea
Velocidad 1
NEUTRO
RJ
AZ
MR
BO
SP4
Toma de tierra
Toma de tierra
Toma de tierra
N
SP1
SP2
SP3
Marrón
Marrón
Marrón
Verde/Amarillo
Verde/Amarillo
Verde/Amarillo
Blanco
Blanco
Rojo
Rojo
Rojo
Azul
Azul
Naranja
Naranja
Naranja
BO / NO / AZ (16 AWG)
NO/ N / BO(16 AWG)
120V, 60HZ, 
Alimentación de 20A
L1NT1T2S3
Velocidad 2
Velocidad 3
12 
1/
8
 " 
(308)
14 
3/
8
 " 
(365)
7/
8
 " (22)
1 
3/
4
 " 
(44)
19 
1/
8
 " 
(486)
ø9 
7/
8
 " 
(251)
12
 " 
(305)
12 
7/
8
 " 
(327)
 Figura 20: Cableado de la campana con un ventilador en
línea
Velocidad 1
NEUTRO
RJ
AZ
MR
BO
SP4
Toma de tierra
Toma de tierra
Toma de tierra
N
SP1
SP2
SP3
Marrón
Marrón
Marrón
Verde/Amarillo
Verde/Amarillo
Verde/Amarillo
Blanco
Blanco
Rojo
Rojo
Rojo
Azul
Azul
Azul
Naranja
Naranja
Naranja
BO / NO / AZ (16 AWG)
NO/ N / BO(16 AWG)
120V, 60HZ, 
Alimentación de 20A
L1NT1T2S3
Velocidad 2
Velocidad 3










