Installation Manual

Español 9
Instrucciones de instalación
Especificaciones acerca de la
altura de la campana
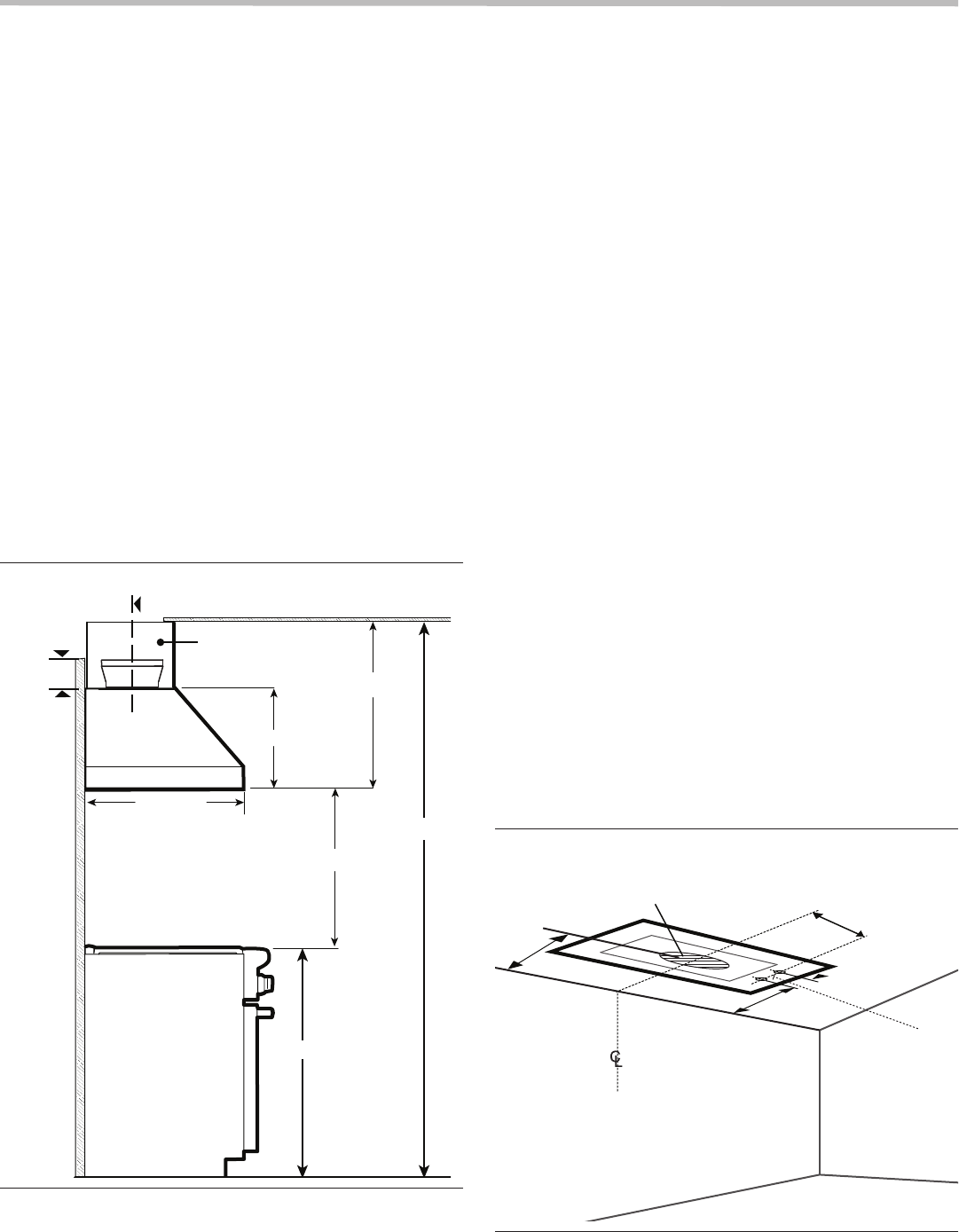
La Figura 4 muestra una típica instalación de la campana
con alargador de conducto opcional. Añada o quite
alargadores de conducto según la altura del techo y la
altura recomendada de la campana.
La altura de instalación debe estar como mínimo de 30
pulg. (762 mm) sobre la placa de cocción. Se deben
respetar las instrucciones de instalación del fabricante del
aparato de cocción para establecer la altura adecuada de
la campana.
Cálculo de la altura de las cubiertas de
conducto opcionales
Se pueden comprar cubiertas de conducto opcionales de 6
pulg. (153 mm), 12 pulg. (305 mm) y 18 – 35 pulg. (457 –
889 mm).
1. Mida la altura entre el suelo y el techo (A, Figura 4).
2. Mida la altura entre el suelo y la placa de cocción (B,
Figura 4).
3. Mida la altura de montaje de la campana entre la parte
inferior de la campana y la placa de cocción (C,
Figura 4). La altura debe ser como mínimo de 30 pulg.
(762 mm).
4. Calcule la altura de la cubierta del conducto opcional
(D, Figura 4): D = A – (B + C).
AVISO:
El calor puede dañar la campana si funciona una campana
PROFESSIONAL de THERMADOR o si la cocina funciona
con varios quemadores a reglajes altos debajo de una
campana apagada instalada a la altura mínima.
Preparación del cableado
Asegúrese de que el cableado no interfiere con las
cubiertas de conducto opcionales (donde las cubiertas
están en contacto con la pared).
Agujero en el techo para los elementos
eléctricos
La caja de conexiones se sitúa en la parte superior
derecha de la campana (vea la Figura 9). Los cables
deben entrar en la pared trasera por lo menos 20 pulg.
(508 mm) sobre la parte inferior de la altura de instalación.
Prepare el agujero en el techo siguiendo las indicaciones
de la Figura 5 (sólo hace falta un agujero para el tubo
protector).
Todas las medidas están en pulgadas (mm).
Figura 4: Cálculo de la altura de la campana
18 pulg. (457)
Alargador de
conducto
opcional
A
B
D
24 pulg. (610)
24 pulg. (610)
24 pulg. (610)
**Siga las recomendaciones
del fabricante del aparato.
*30 pulg. (762 mm) min.
36 pulg. (914 mm) max.
hasta la placa de cocción
*30 pulg. (762 mm) min.
36 pulg. (914 mm) max.
hasta la placa de cocción
*30 pulg. (762 mm) min.
36 pulg. (914 mm) max.
hasta la placa de cocción
C
C
C
L
C
L
C
L
6½ pulg.
(165)
Todas las medidas están en pulgadas (mm).
Figura 5: Ubicación del enchufe
Agujero para un conducto de un
mínimo de 10 pulg. (254 mm).
Agujero de montaje
de 5/8 pulg. de diá.
para un tubo de 1/2 pulg
.
(12,7 mm) hasta la caja
de conexiones.
1 pi –1 pi ¼ pulg.
(336)
6
13
/
16
”
(173)
Línea central de la campana
P
ared
4
7
/
8
”
(48)
7¾ pulg.
(197)
t
r
a
s
e
r
a










