Installation Manual

Español 5
Preparación de la instalación
Factores a tener en cuenta
para la instalación
El conducto de la campana debe evacuar el aire al exterior.
No se puede usar con un aparato de recirculación de aire.
La altura de instalación de la campana sobre la placa de
cocción, de la cocina o de los fogones puede variar. Para
obtener la altura de instalación necesaria sobre la placa de
cocción, de la cocina o de los fogones, consulte el manual
de instalación del aparato.
AVISO:
El calor puede dañar la campana si una campana
PROFESSIONAL de THERMADOR o la cocina funciona
con varios quemadores a reglajes altos bajo una campana
instalada a la altura mínima mientras está apagada.
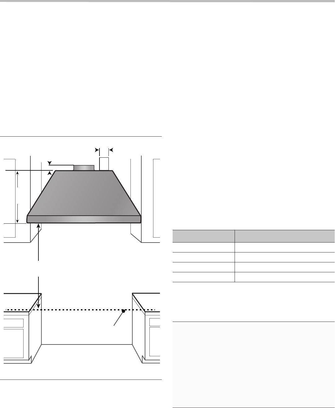
Anchura de la campana
La anchura máxima de la campana no debe ser inferior a la
anchura de la placa de cocción. Para ofrecer un
rendimiento adecuado, el armazón de la campana debe
cubrir la totalidad de la placa de cocción.
Cuando hay espacio suficiente, se puede utilizar una
campana más ancha para aumentar la cobertura.
La campana debe estar centrada sobre la placa de cocción
para un resultado óptimo.
Distancia hasta la placa de cocción
La altura de instalación debe ser como mínimo de 30 pulg.
(762 mm) sobre la placa de cocción. Se deben respetar las
instrucciones de instalación del fabricante del aparato de
cocción para establecer la altura adecuada de la campana.
Peso del aparato
Al calcular la carga del sistema de soporte del armazón,
asegúrese de tener en cuenta el peso del aparato de
ventilación.
Todas las medidas están en pulgadas (mm).
Figura 2: Instalación típica de la campana
Placa de
cocción
18 pulg.
18 pulg.
(457)
(457)
(457)
*La anchura máxima de la
campana no debe ser inferior
a la anchura de la placa de cocción.
E
* Siga las recomendaciones
del fabricante del aparato.
* 30 pulg. (762) min.
36 pulg. (914) max.
hasta la placa de cocción
* 30 pulg. (762) min.
36 pulg. (914) max.
hasta la placa de cocción
* 30 pulg. (762) min.
36 pulg. (914) max.
hasta la placa de cocción
3¼ pulg.
(83)
Ubicación del enchufe
6½ pulg. (165)
MODELO PESO
HPCN36NS 33 lbs. (15 kg)
HPCB36NS 49 lbs. (22 kg)
HPCN48NS 47 lbs. (21 kg)
HPCB48NS 63 lbs. (29 kg)
NOTA: El peso de los modelos HPCN no tiene en
cuenta el peso del ventilador integrado. El peso de un
ventilador integrado es de 16 lb (7 kg). El peso de los
modelos HPCB tiene en cuenta el peso de un ventilador
integrado
IMPORTANTE:
Los pesos indicados sólo tienen cuenta de la campana y
el ventilador. El instalador debe tener en cuenta todo el
material de construcción para calcular el peso muerto
total de la instalación, incluyendo, sin limitarse a ello, la
pared, los azulejos, el mortero, el yeso, los ladrillos, el
acabado, los muros de separación y otros elementos
arquitectónicos y estructurales semejantes.
Corresponden al dueño y al instalador determinar si se
deben aplicar requisitos o normas adicionales a la
instalación específica.










