Installation Manual

Française 10
Préparation de la cloison
arrière
NOTE : *La quincaillerie fournie sert à fixer la hotte à tra-
vers une cloison sèche ou du plâtre et des montants de
bois d’épaisseur standard. Pour les autres types d’installa-
tion, les installateurs sont responsables de fournir la quin-
caillerie.
IMPORTANT : Pour un rendement optimal, la hotte doit
être centrée au-dessus de la surface de cuisson.
Support en bois
1. Calculez la hauteur d’installation de la hotte comme
décrit à la page 9.
2. Tracez au-dessus de la surface de cuisson une ligne
horizontale à une distance correspondant à la hauteur
d’installation de la hotte, plus 16 po (406 mm). Cette
ligne correspond à l’endroit où le support de bois fourni
avec la hotte sera installé
3. Repérez la ligne centrale de la hotte. Tracez une ligne
verticale le long de cette ligne centrale jusqu’à la ligne
horizontale tracée à l’étape 2.
4. La hotte se fixe au mur à l’aide du support de bois
fourni. Enlevez le support de bois de l’arrière de la
hotte en dévissant les deux vis d’expédition (jetez les
vis). Tracez la ligne centrale du support de bois.
5. Repérez de chaque côté de la ligne centrale de la hotte
un montant dans lequel vous fixerez le support de bois,
comme illustré sur la Figure 6.
6. Alignez la partie supérieure du support de bois le long
de la ligne horizontale tracée à l’étape 2. Alignez les
lignes centrales du support et de la surface de cuisson.
7. Percez un trou taraudé d’une profondeur de 3 po
(76 mm) à travers le support de bois, le mur et le
montant.
8. Enlevez le support et, sur une surface solide,
agrandissez le trou en perçant un trou de 5/16 po
(8 mm) à travers le support de bois. Utilisez une mèche
conique pour fraiser le trou de façon à ce que les têtes
des vis ne dépassent pas du support et n’interfèrent
pas avec la hotte.
9. Utilisez deux vis de 3 po (76 mm) pour fixer le support
de bois au mur, comme illustré sur la Figure 6.
10. Sur le support de bois, marquez les emplacements
utilisés pour fixer la hotte, comme illustré sur la
Figure 7.
11. Percez un trou taraudé de 3/16 po (4,8 mm) à travers
le support de bois et le mur. Les vis de 5/8 po (16 mm)
ne doivent pas nécessairement entrer dans les
montants.
12. Utilise deux vis de 1-1/2 po (38 mm) pour fixer le
support de bois en laissant sortir 1/4 po (6 mm) de
chaque vis pour suspendre la hotte.
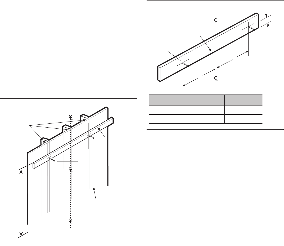
Toutes les mesures sont en pouces (mm).
Figure 6 : Installation du support de bois
Surface de cuisson
Distance entre la
surface de cuisson,
plus 16 po (406 mm).
Distance entre la
surface de cuisson,
plus 16 po (406 mm).
Distance entre la
surface de cuisson,
plus 16 po (406 mm).
Ligne centrale de la surface de cuisson
Ligne centrale de la surface de cuisson
Ligne centrale de la surface de cuisson
Support
en bois (fourni)
Support
en bois (fourni)
Support
en bois (fourni)
Deux vis de
3 po (76 mm)
Deux vis de
3 po (76 mm)
Deux vis de
3 po (76 mm)
Cloison sèche
Cloison sèche
Cloison sèche
Montants
du mur
Montants
du mur
Montants
du mur
Toutes les mesures sont en pouces (mm).
Figure 7 : Comment suspendre la hotte
Support
de bois
Deux vis de
1-1/2 po (38 mm)
A
A
2 po (51
)
DIMENSION DE LA HOTTE A
36 po (914) 7¾ po (197)
48 po (1219) 13¾ po (350)










