Installation Manual

Française 9
Instructions d’installation
Spécifications concernant la
hauteur de la hotte
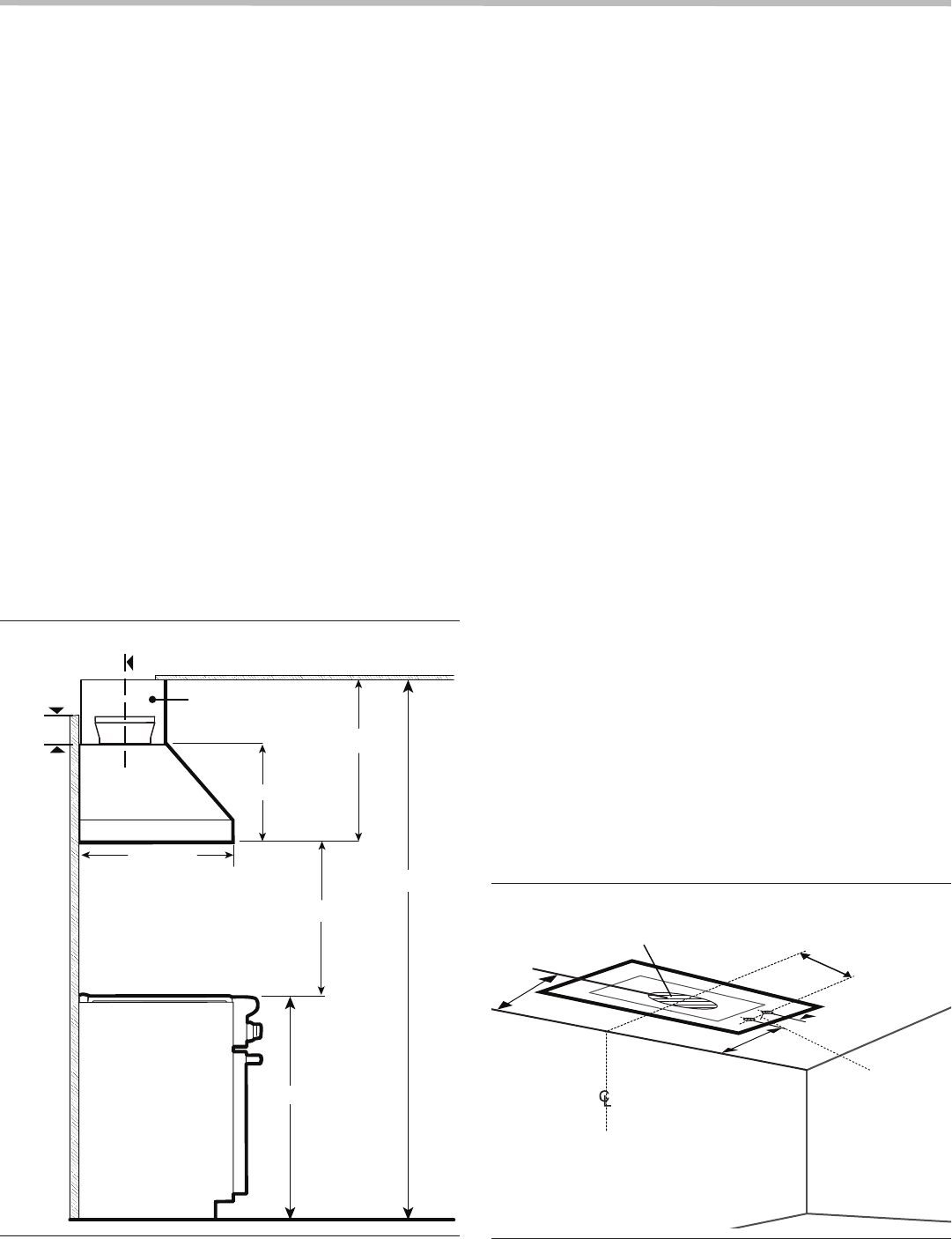
La Figure 4 montre l’installation-type d’une hotte avec une
rallonge de conduit optionnelle. Ajoutez ou enlevez les
rallonges de conduit selon les besoins en tenant compte de
la hauteur du plafond et de la hauteur d’installation
recommandée de la hotte.
La hauteur minimale d’installation est de 30 po (762 mm)
au-dessus de la surface de cuisson. Toutefois, il est
impératif de respecter les instructions d’installation du
fabricant de l’appareil de cuisson en ce qui concerne la
hauteur adéquate d’installation de la hotte.
Calcul de la hauteur des pièces de
recouvrement de conduit optionnelles
Les pièces de recouvrement optionnelles sont en vente
dans des formats de 6 po (153 mm), 12 po (305 mm) et 18
– 35 po (457 – 889 mm).
1. Mesurez la distance entre le plancher et le plafond (A,
Figure 4).
2. Mesurez la distance entre le plancher et la surface de
cuisson (B, Figure 4).
3. Mesurez la hauteur de montage de la hotte entre le bas
de la hotte et la surface de cuisson (C, Figure 4). La
hauteur doit se trouver à au moins 30 po (762 mm).
4. Calculez la hauteur des pièces de recouvrement de
conduit optionnelles (D, Figure 4) : D = A – (B + C).
AVIS :
La hotte pourrait être endommagée par de la chaleur si
plusieurs brûleurs d’une surface de cuisson ou d’une
cuisinière PROFESSIONAL de THERMADOR sont utilisés
simultanément à haute intensité et que la hotte est installée
à une distance inférieure aux espaces libres minimaux.
Préparation du câblage
Assurez-vous que le câblage n’entrave pas les pièces de
recouvrement de conduit optionnelles (là où elles touchent
au mur).
Ouverture pour le passage des éléments
électriques dans le plafond
La boîte de connexion est située du côté supérieur droit de
la hotte (consultez la Figure 9). Les câbles doivent entrer
dans le mur arrière au moins 20 po (508 mm) au-dessus du
bas de la hauteur d’installation.
Préparez l’ouverture pour le passage des câbles dans le
plafond selon les indications de la Figure 5 (seul un trou est
nécessaire pour le tube protecteur).
Toutes les mesures sont en pouces (mm).
Figure 4 : Calcul de la hauteur de la hotte
18 po (457)
Rallonge de
conduit
optionnelle
A
B
D
24 po (610)
24 po (610)
24 po (610)
*Suivez les recommandations
du fabricant de l’appareil
de cuisson.
*30 po (762) min.
36 po (914) max.
de la surface de cuisson
*30 po (762) min.
36 po (914) max.
de la surface de cuisson
*30 po (762) min.
36 po (914) max.
de la surface de cuisson
C
C
C
L
C
L
C
L
6½ po
(165)
Toutes les mesures sont en pouces (mm).
Figure 5 : Emplacement des composantes électriques
Le trou doit permettre le passage
d’un conduit d’au moins 10 po (254 mm)
Trous de 5/8 po (16 mm)
de diamètre pour le
passage du tube pour
câbles de 1/2 po
(12,7 mm) vers la
boîte de connexion
Trous de 5/8 po (16 mm)
de diamètre pour le
passage du tube pour
câbles de 1/2 po
(12,7 mm) vers la
boîte de connexion
Trous de 5/8 po (16 mm)
de diamètre pour le
passage du tube pour
câbles de 1/2 po
(12,7 mm) vers la
boîte de connexion
1 ft –1 ft ¼” (336)
6
13
/
16
po (173)
Ligne centrale de la hotte
4
7
/
8
po
(48)
7¾ po
(197)










