Installation Manual

English 14
1. Remove junction box channel covering the wires (see
Figure 9 on page 11).
2. Remove circular knockouts (Figure 9 on page 11).
3. Connect the blower’s Molex plug connector to the
connector present inside the hood, as shown in
Figure 16.
4. Install 1” (25.4 mm) conduit connector in junction box.
5. Run black, white, and green wires (#12 AWG) in 1”
(25.4 mm) conduit from the power supply to the
junction box.
6. Connect the power supply wires to the hood wires in
the following order: black to black, white to white, and
green wire to green ground screw on chassis. Use
spring type wire nuts.
• Wire nuts should be spring type wire nuts rated for
a minimum of two (2) #18 gauge wires and
maximum of four (4) #14 gauge wires, UL & CSA
rated to 600V and 302°F (150°C).
7. Reinstall the junction box channel.
Wiring the Hood with a Remote Blower
Depending on preference and ducting situation, these
blowers can be mounted on the roof or exterior wall of the
home. An exterior installation may be more appealing to
reduce noise in the kitchen.
1. Remove junction box channel covering the wires (see
Figure 9 on page 11).
2. Remove circular knockouts (Figure 9 on page 11).
3. Install 1” (25.4 mm) conduit connectors.
4. Run black, white, and green wires (#12 AWG) in 1”
(25.4 mm) conduit from the power supply to the
junction box.
5. Connect the power supply wires to the hood wires in
the following order: black to black, white to white, and
green wire to green ground screw on chassis. Use
spring type wire nuts.
• Wire nuts should be spring type wire nuts rated for
a minimum of two (2) #18 gauge wires and
maximum of four (4) #14 gauge wires, UL & CSA
rated to 600V and 302°F (150°C).
6. Connect the “pigtail” to the connector inside the
junction box.
7. Run five (5) #14 AWG wires in 1” (25.4 mm) conduit
from the remote blower to the second conduit
connector.
8. Connect the remote blower to the pigtail wires as per
Figure 18. Connect the remote blower green (ground)
wire to the ground screw in the junction box. Refer to
the blower installation instructions for further wiring
details.
9. Reinstall the junction box channel.
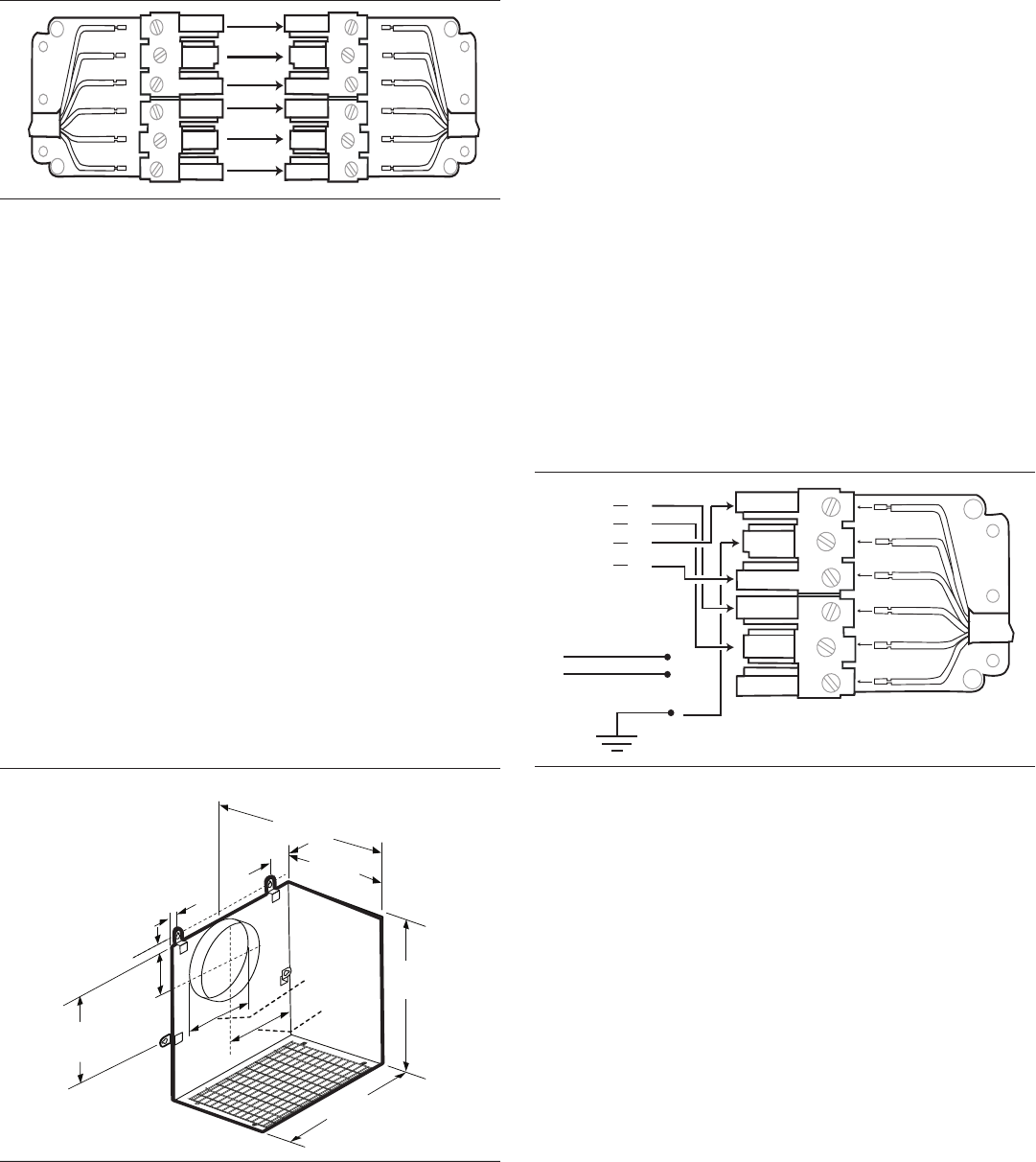
Figure 16: Wiring the Hood with an Integral Blower
measurements in inches (mm)
Figure 17: VTR1330 Remote Blower
From Hood
From Hood
From Hood From Blower
From Blower
From Blower
19
7/
8
"
(505)
2
1/
8
"
(54)
10 "
(254)
2
1/
8
"
(54)
20
3/
4
"
(527)
12
7/
8
"
(327)
12
1/
8
"
(308)
6
1/
2
"
(165)
1
7/
8
"
(48)
13
5/
8
"
(346)
dia. 9
7/
8
"
(251)
Figure 18: Wiring the Hood with a Remote Blower
SPEED 1
SPEED 2
SPEED 3
NEUTRAL
RD
BU
BN
WH
SP4
GROUND
N
SP1
SP2
SP3
Brown
Brown
Brown
Green/Yellow
Green/Yellow
Green/Yellow
White
White
White
Red
Red
Red
Blue
Blue
Blue
Orange
Orange
Orange
WH / BC / BL (16 AWG)
BK / N / NE (16 AWG)
120V, 60HZ, 20A
POWER SUPPLY
L1NT1T2S3










