Installation Manual

English 10
Back Wall Preparation
NOTE:
Hardware provided is for mounting through standard
thickness drywall or plaster into wood studs. Installers are
responsible to provide hardware for other types of
mounting situations.
IMPORTANT:
The hood needs to be centered over the cooking surface
for best performance.
Wood Hanging Bracket
1. Calculate the hood installation height as described on
page 9.
2. Draw a horizontal line at a distance above the cooking
surface equal to the hood installation height plus 16”
(406 mm). This line is the mounting location of the
wood bracket shipped with the hood.
3. Find the centerline of the hood. Draw a vertical line
along this centerline up to the horizontal line drawn in
Step 2.
4. The hood is mounted to the wall using the wood
bracket shipped with the hood. Remove the wood
bracket located at the back side of the hood by
removing the two shipping screws (discard screws).
Mark the centerline of the wood bracket.
5. Locate a stud on both sides of the hood centerline to
use for mounting the wood bracket as shown in
Figure 6.
6. Align the top of the wood bracket along the horizontal
line drawn in Step 2. Align the centerlines of the
bracket and cooktop.
7. Drill a 3” (76 mm) deep ¼” (6 mm) tap hole through the
wood bracket, wall, and into the stud.
8. Remove the bracket and on a sturdy surface, make the
hole larger by drilling a 5/16” (8 mm) hole through the
wood bracket. Use a countersink bit to make a hole
large enough to countersink the screw heads to
prevent interference with the hood.
9. Use (2), 3” (76 mm) screws to attach the wood bracket
to the wall, as shown in Figure 6.
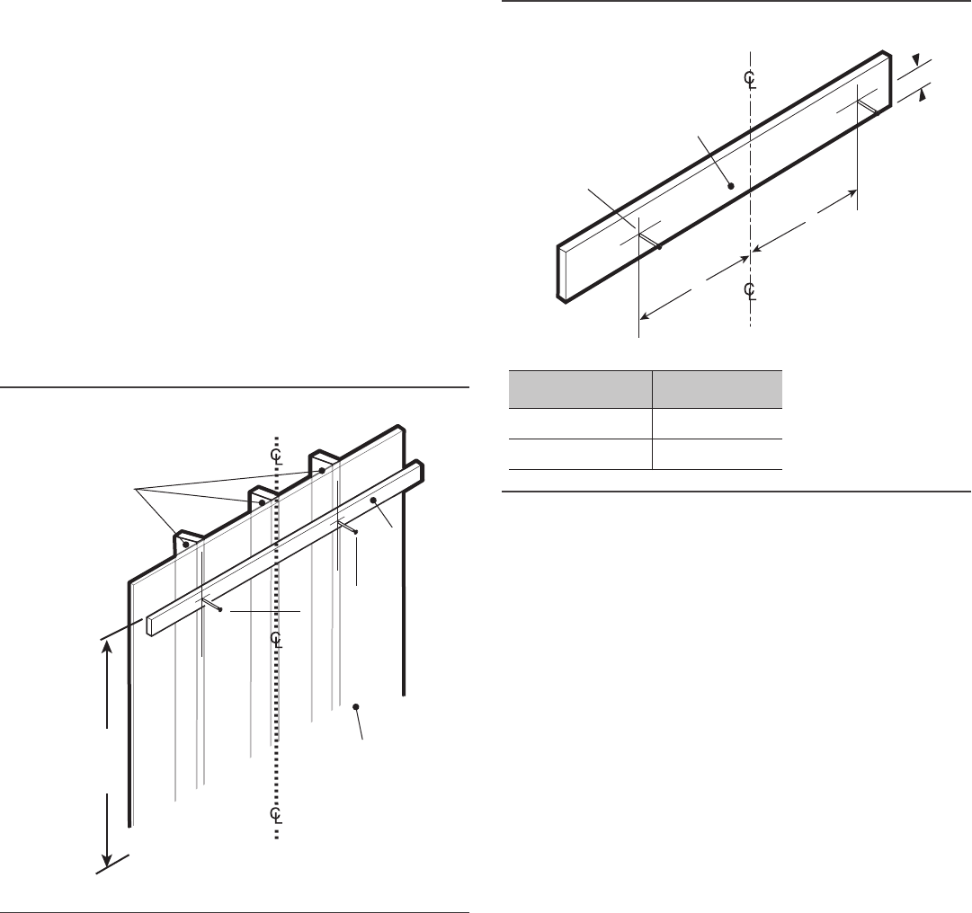
10. On the wood bracket, mark the locations used to hang
the hood according to Figure 7.
11. Drill a 3/16” (4.8 mm) tap hole through the wood
bracket and wall. These 5/8” (16 mm) screws do not
need to go into the studs.
12. Use (2) 1½” (38 mm) screws to secure the wood
bracket leaving ¼” (6 mm) of each screw exposed for
hanging the hood.
measurements in inches (mm)
Figure 6: Mounting the Wooden Bracket
Cooking Surface
Distance to
cooking surface
plus 16” (406)
Distance to
cooking surface
plus 16” (406)
Distance to
cooking surface
plus 16” (406)
Cooktop Centerline
Wood
Bracket
(included)
Wood
Bracket
(included)
Wood
Bracket
(included)
Wall Studs
Screws 2 ea
3” (76)
Screws 2 ea
3” (76)
Screws 2 ea
3” (76)
Drywall
Drywall
Drywall
measurements in inches (mm)
Figure 7: Hanging the Hood
Wood
Bracket
Screws 2 ea
1½” (38)
A
A
2” (51)
HOOD SIZE A
36” (914) 7¾” (197)
48” (1219) 13¾” (350)










